Проект двухэтажного дома HT-150
Дом подходит для:
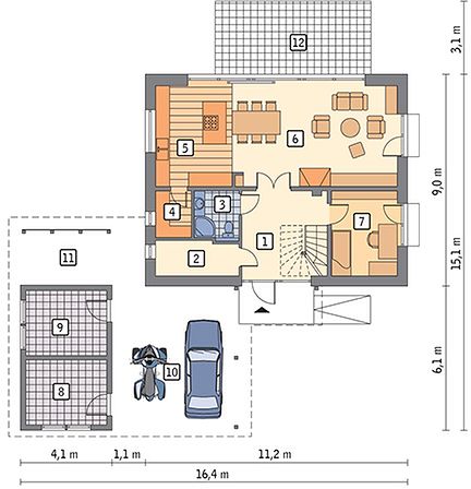
Площадь
150 м 2
Размер дома:
10 x 8
Этажей:
3
Спален:
5
Санузел:
3
Гараж:
Нет
Баня:
Нет
Терраса:
Нет
Панорамные окна:
Нет
Мастер-спальня:
Нет
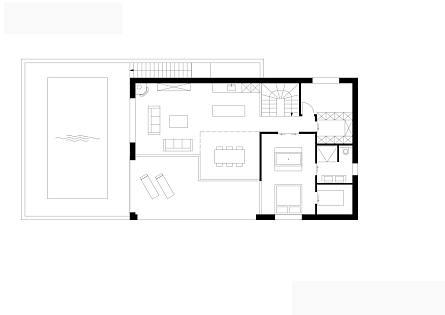
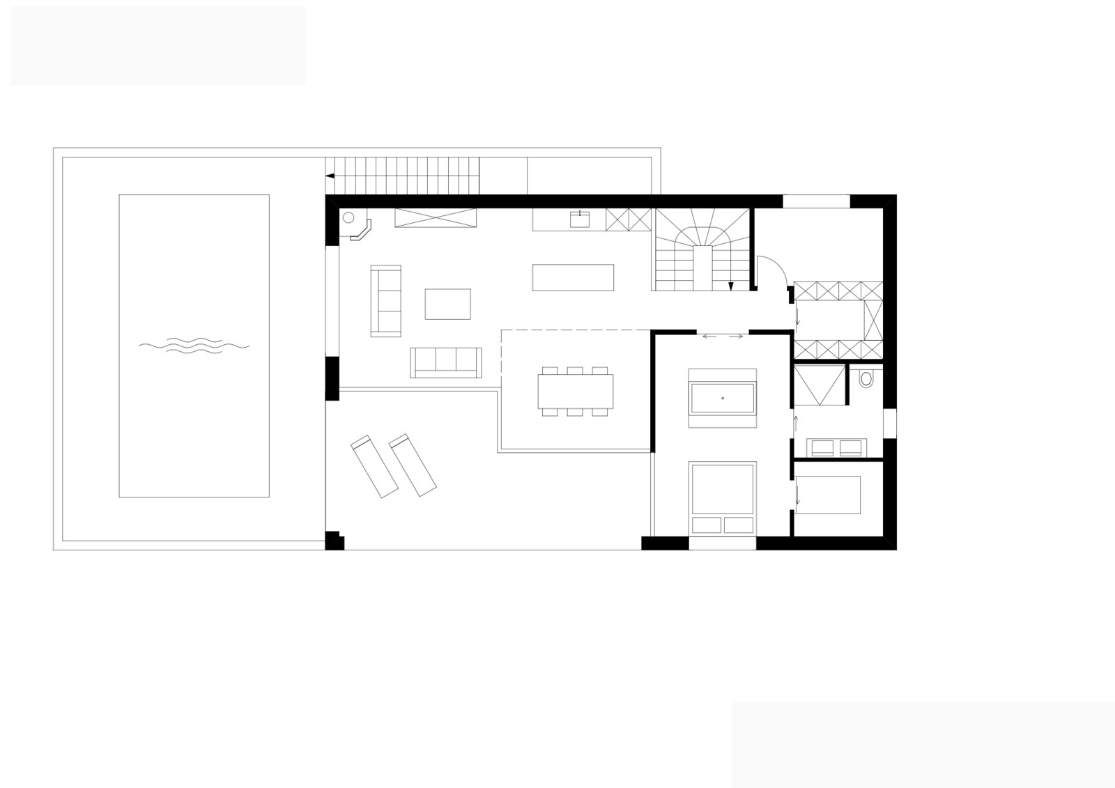
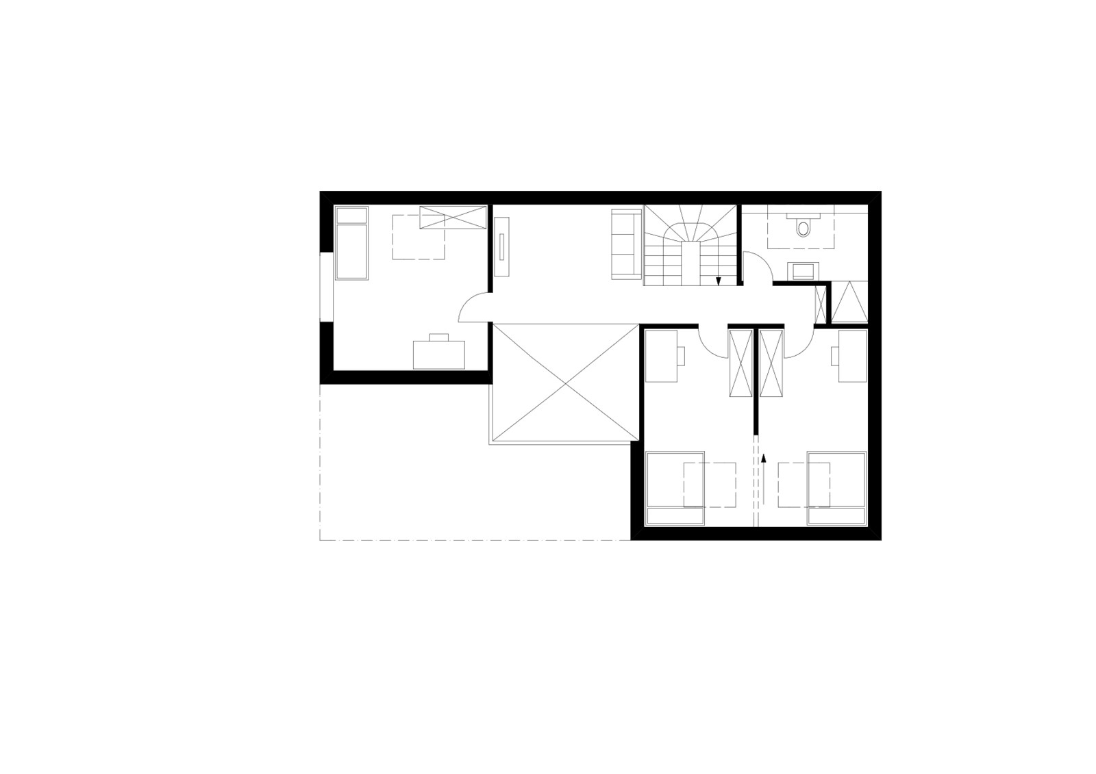
Планировка
Характеристики
- Общая площадь: 150 м2
- Жилая площадь: 118 м2
- Количество этажей: 3
- Гараж: нет
- Площадь кровли: 150 м2
- Отделка: Без отделки
- Фундамент: Дома со свайно-ростверковым фундаментом
Материалы и перечень работ
- Фундамент свайно-ростверковый
- Газоблок/керамоблок
- Перекрытия монолитная плита
- ПВХ-мембрана
- В стоимость не входит
- В стоимость не входит
- В стоимость не входит
- Фундамент свайно-ростверковый
- Газоблок/керамоблок
- Перекрытия монолитная плита
- ПВХ-мембрана
- В стоимость не входит
- В стоимость не входит
- В стоимость не входит
Что еще входит в стоимость:
Отправьте свои контакты и мы расчитаем вам смету
Скорее всего вам подойдут следующие проекты домов:
Проект двухэтажного дома Дом id-32582
Для большой семьи
Дом подходит для:
Дом подходит для:




