Проект двухэтажного дома К-160
Дом подходит для:
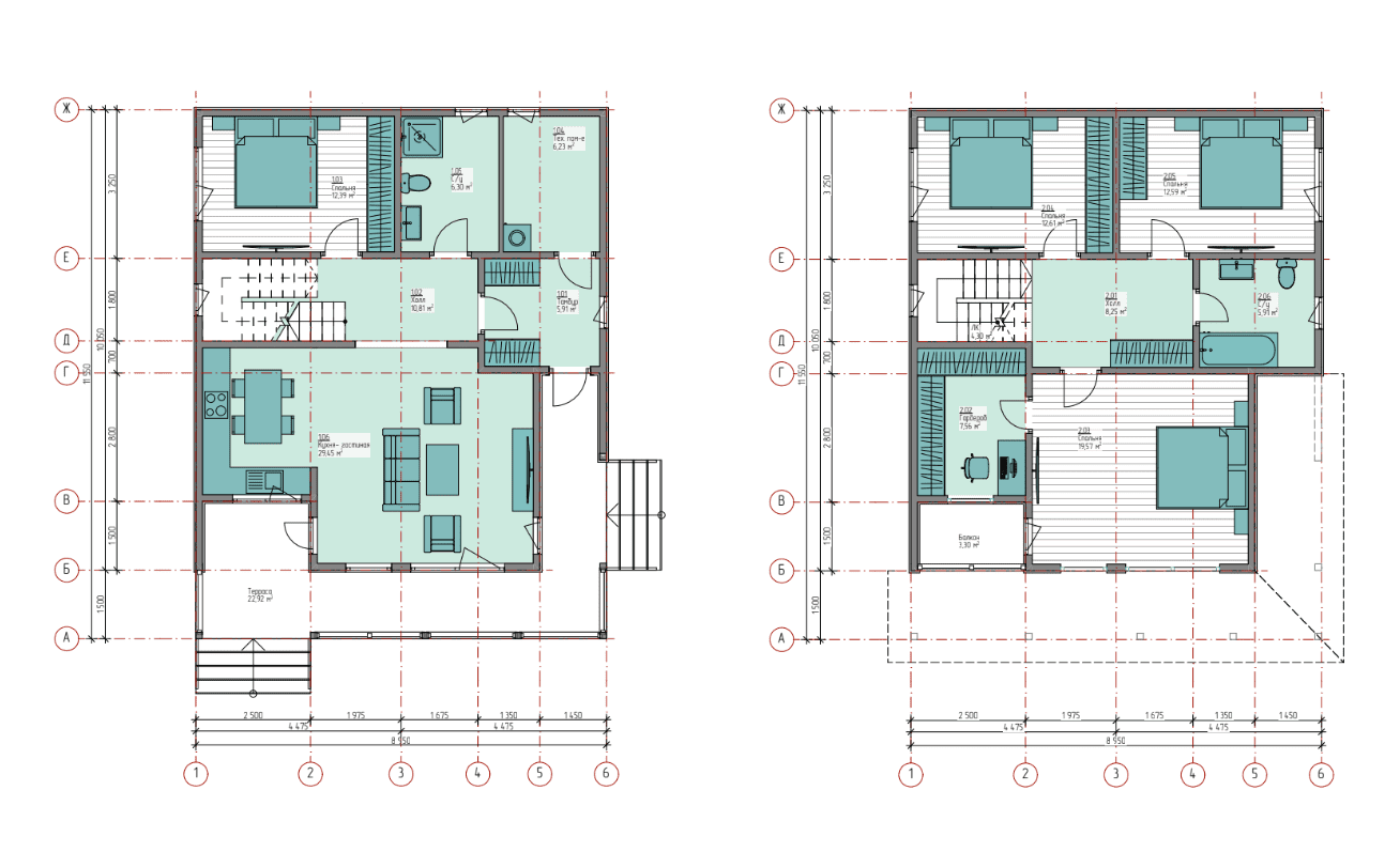
Площадь
160 м 2
Размер дома:
11.9х8.9
Этажей:
2
Спален:
5
Санузел:
2
Гараж:
Нет
Баня:
Нет
Терраса:
Нет
Панорамные окна:
Нет
Мастер-спальня:
Нет
Планировка
Характеристики
- Общая площадь: 160 м2
- Жилая площадь: 134 м2
- Количество этажей: 2
- Гараж: нет
- Площадь кровли: 165 м2
- Отделка: Без отделки
- Фундамент: Дома со свайным фундаментом
Материалы и перечень работ
- Сваи забивные железобетонные 150х150х3000, усиленные армированием конструкции; оголовок 200х200 мм
- Двойная горизонтальная гидроизоляция: гидростеклоизол
- Брус обрезной 150х200 мм
- Сетка оцинкованная металлическая для защиты от грызунов
- Балки усиленные: доска обрезная 50х200 мм
- Балки усиленные: строганная доска камерной сушки 45х195 мм
- Стойки, диагональные усиления стен: строганная доска камерной сушки 45х145 мм
- Металлочерепица GRAND LINE CLASSIC. Покрытие Satin. Толщина стали 0,5 мм
- Пластиковые софиты. Свесы крыши - 550 мм от края наружной стойки
- Rehau Grazio 70 мм. Двухкамерный стеклопакет
- Дверь с терморазрывом. Производство Россия. В кол-ве 1 шт
- В стоимость не входит
- Имитация бруса. Покраска не включена
- Вертикальные направляющие для вент. фасада: строганный брусок камерной сушки 40х40 мм
- Внутренние стены и перегородки: Гипсокартонный лист (ГКЛ) 9,5 мм в 2 слоя с перекрытием швов (без шпаклевки швов) по обрешетке из сухой доски
- Подготовка под натяжной потолок обрешетка из сухой строганной доски
- Сваи забивные железобетонные 150х150х3000, усиленные армированием конструкции; оголовок 200х200 мм
- Двойная горизонтальная гидроизоляция: гидростеклоизол
- Брус обрезной 150х200 мм
- Сетка оцинкованная металлическая для защиты от грызунов
- Балки усиленные: доска обрезная 50х200 мм
- Балки усиленные: строганная доска камерной сушки 45х195 мм
- Стойки, диагональные усиления стен: строганная доска камерной сушки 45х145 мм
- Металлочерепица GRAND LINE CLASSIC. Покрытие Satin. Толщина стали 0,5 мм
- Пластиковые софиты. Свесы крыши - 550 мм от края наружной стойки
- Rehau Grazio 70 мм. Двухкамерный стеклопакет
- Дверь с терморазрывом. Производство Россия. В кол-ве 1 шт
- В стоимость не входит
- Имитация бруса. Покраска не включена
- Вертикальные направляющие для вент. фасада: строганный брусок камерной сушки 40х40 мм
- Внутренние стены и перегородки: Гипсокартонный лист (ГКЛ) 9,5 мм в 2 слоя с перекрытием швов (без шпаклевки швов) по обрешетке из сухой доски
- Подготовка под натяжной потолок обрешетка из сухой строганной доски
Что еще входит в стоимость:
Отправьте свои контакты и мы расчитаем вам смету
Скорее всего вам подойдут следующие проекты домов:
Дом подходит для:
Проект двухэтажного дома Проект 1240 - финский каркасный дом с мансардным этажом
Для большой семьи
Дом подходит для:
Дом подходит для:
Дом подходит для:













