Проект двухэтажного дома Сорренто
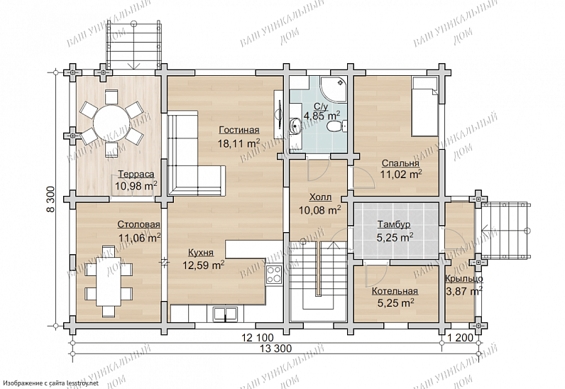
Площадь
168 м 2
Размер дома:
Этажей:
2
Спален:
4
Санузел:
0
Гараж:
Нет
Баня:
Нет
Терраса:
Нет
Панорамные окна:
Нет
Мастер-спальня:
Нет
О проекте
Здесь каждая комната рассказывает свою историю. Доступные 168 м² с разумным подходом к каждой зоне. Крыша из металлочерепица подчёркивает современный облик дома. Количество спален — 4, делая планировку гибкой. Брус делает дом надёжным при любой погоде.Характеристики
- Общая площадь: 168 м2
- Количество этажей: 2
- Стиль, разновидность: Дома в ином стиле
- Форма: Прямоугольные дома
- Тип кровли: Дома с многощипцовой крышей
- Отделка: Без отделки
Отправьте свои контакты и мы расчитаем вам смету
Скорее всего вам подойдут следующие проекты домов:
Дом подходит для:
Дом подходит для:
Дом подходит для:










