Проект двухэтажного дома Калифорния
Дом подходит для:
Площадь
281 м 2
Размер дома:
11.3х10.4
Этажей:
2
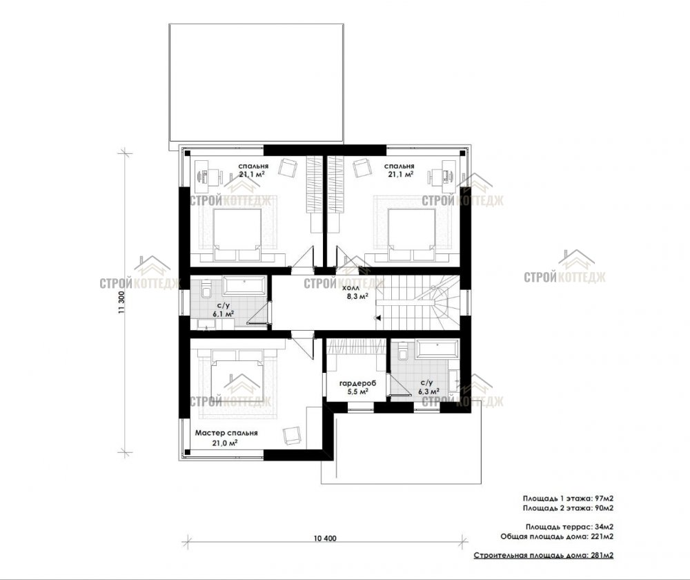
Спален:
4
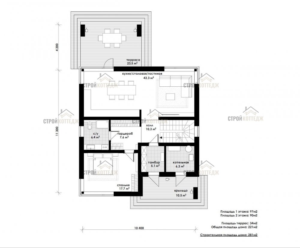
Санузел:
3
Гараж:
Нет
Баня:
Нет
Терраса:
Нет
Панорамные окна:
Нет
Мастер-спальня:
Нет
Планировка
Характеристики
- Общая площадь: 281 м2
- Жилая площадь: 187 м2
- Количество этажей: 2
- Гараж: нет
- Площадь кровли: 284 м2
- Отделка: Без отделки
- Фундамент: Дома с плитным фундаментом
Материалы и перечень работ
- Монолитная ж/б плита 250 мм;
- Вязка арматурного каркаса 12/6 мм шаг 200 мм;
- Устройство песчаной подушки 300 мм;
- Бетон М-350 (В25) сертифицированный;
- Заливка фундамента;
- Внутренние перегородки из газобетонных блоков Bonolit плотностью D500 – 100мм;
- Укладка первого ряда на гидроизоляцию;
- Кладка блоков изготовлена на клеевой состав;
- Армирование каждой третьей линии;
- Монолитный ж/б пояс 200х200 мм с утеплением и кладкой доборного блока;
- Утепление кровли 200 мм - ПСБ - С35;
- Проект кровли;
- Покрытие кровли - Техноэласт ЭКП, ЭПП;
- Установка и разборка лесов;
- Все расходные и сопутствующие материалы необходимые для кровли;
- Оконные и дверные перемычки;
- Закладные под коммуникации - электричество, водоснабжение и канализация;
- Внешние несущие стены из газобетонных блоков плотностью Bonolit D500 – 375 мм;
- Монолитная ж/б плита 250 мм;
- Вязка арматурного каркаса 12/6 мм шаг 200 мм;
- Устройство песчаной подушки 300 мм;
- Бетон М-350 (В25) сертифицированный;
- Заливка фундамента;
- Внутренние перегородки из газобетонных блоков Bonolit плотностью D500 – 100мм;
- Укладка первого ряда на гидроизоляцию;
- Кладка блоков изготовлена на клеевой состав;
- Армирование каждой третьей линии;
- Монолитный ж/б пояс 200х200 мм с утеплением и кладкой доборного блока;
- Утепление кровли 200 мм - ПСБ - С35;
- Проект кровли;
- Покрытие кровли - Техноэласт ЭКП, ЭПП;
- Установка и разборка лесов;
- Все расходные и сопутствующие материалы необходимые для кровли;
- Оконные и дверные перемычки;
- Закладные под коммуникации - электричество, водоснабжение и канализация;
- Внешние несущие стены из газобетонных блоков плотностью Bonolit D500 – 375 мм;
Что еще входит в стоимость:
Отправьте свои контакты и мы расчитаем вам смету
Скорее всего вам подойдут следующие проекты домов:
Проект двухэтажного дома Дом id-92646
Семья с двумя детьми
Дом подходит для:
Дом подходит для:
Проект двухэтажного дома Дом id-92357
Для большой семьи
Дом подходит для:
Дом подходит для:
Проект двухэтажного дома Дом id-86140
Семья с двумя детьми
Дом подходит для:
Дом подходит для:

























