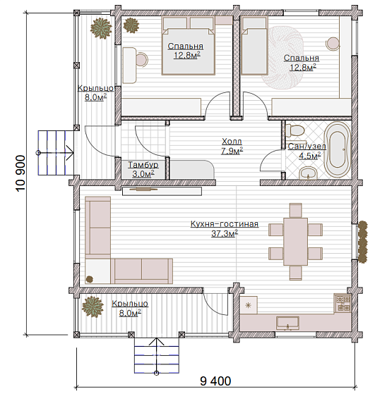
Проект одноэтажного дома Кальяри
Площадь
94 м 2
Размер дома:
Этажей:
1
Спален:
3
Санузел:
0
Гараж:
Нет
Баня:
Нет
Терраса:
Нет
Панорамные окна:
Нет
Мастер-спальня:
Нет
О проекте
Дом с идеальной звукоизоляцией между комнатами Это не просто 94 м² — это зона комфорта. Выбор Бруса обусловлен его теплоизоляционными свойствами. Проект включает 3 спальни — удобно для семьи. Одноэтажная эргономичная планировка делает зонирование более логичным.Характеристики
- Общая площадь: 94 м2
- Количество этажей: 1
- Стиль, разновидность: Дома в ином стиле
- Форма: Прямоугольные дома
- Тип кровли: Дома с многощипцовой крышей
- Отделка: Без отделки
Отправьте свои контакты и мы расчитаем вам смету
Скорее всего вам подойдут следующие проекты домов:
Дом подходит для:
Дом подходит для:
Дом подходит для:











