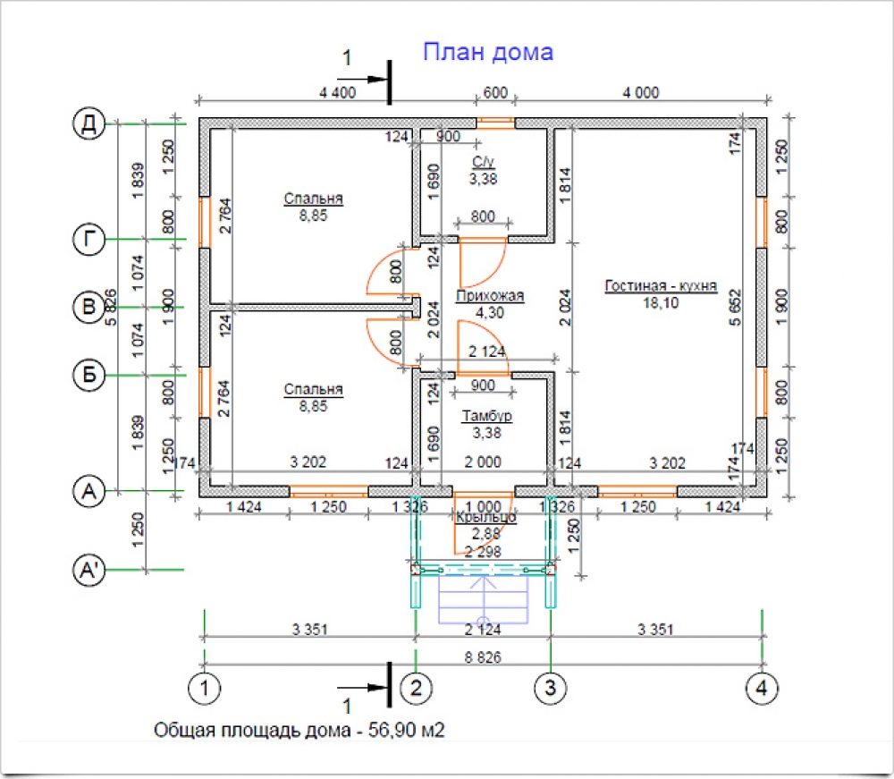
Проект одноэтажного дома Канадский дом из сип-панелей площадью 56 кв. м.
Площадь
56 м 2
Размер дома:
6x9
Этажей:
1
Спален:
2
Санузел:
0
Гараж:
Нет
Баня:
Нет
Терраса:
Нет
Панорамные окна:
Нет
Мастер-спальня:
Нет
О проекте
Внешняя привлекательность здания не уступает его практичности. Площадь 56 м² — это свобода и контроль одновременно. Дом спроектирован в духе дома в классическом стиле. Наличие 2 спальни удовлетворит запросы семьи с детьми. Выбор Каркас обусловлен его теплоизоляционными свойствами.Характеристики
- Общая площадь: 56 м2
- Количество этажей: 1
- Стиль, разновидность: Дома в ином стиле
- Форма: Прямоугольные дома
- Тип кровли: Дома с двускатной крышей
- Отделка: Без отделки
- Размер: 6x9








