Проект двухэтажного дома Капфенберг
Площадь
277 м 2
Размер дома:
Этажей:
2
Спален:
4
Санузел:
0
Гараж:
Нет
Баня:
Нет
Терраса:
Нет
Панорамные окна:
Нет
Мастер-спальня:
Нет
О проекте
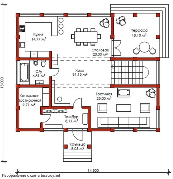
Архитектура, которая вдохновляет и согревает. 277 м² — и ни один метр не пропадает зря. Архитектура выполнена в стиле дома в стиле фахверк. Двухэтажная рациональная планировка разграничивает спальные и дневные помещения. Материал кровли — металлочерепица, что добавляет зданию индивидуальность.Характеристики
- Общая площадь: 277 м2
- Количество этажей: 2
- Стиль, разновидность: Дома в стиле Фахверк
- Форма: Прямоугольные дома
- Тип кровли: Дома с мансардной крышей
- Отделка: Без отделки
Отправьте свои контакты и мы расчитаем вам смету
Скорее всего вам подойдут следующие проекты домов:
Дом подходит для:
Дом подходит для:
Дом подходит для:












