Проект двухэтажного дома Линц
Площадь
279 м 2
Размер дома:
Этажей:
2
Спален:
4
Санузел:
0
Гараж:
Нет
Баня:
Нет
Терраса:
Нет
Панорамные окна:
Нет
Мастер-спальня:
Нет
О проекте
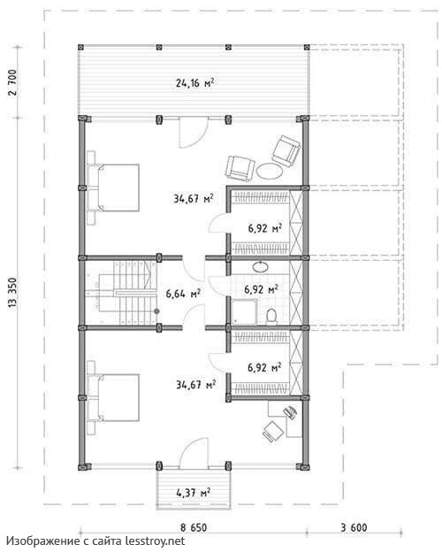
Архитектура, которая делает дом живым и тёплым.Суммарно 54 м² — для жизни без лишних ограничений. Это двухэтажная структура, которая делает зонирование более логичным. Дом спроектирован в духе дома в классическом стиле. Проект включает 2 спальни — удобно для семьи.Характеристики
- Общая площадь: 279 м2
- Количество этажей: 2
- Стиль, разновидность: Дома в стиле Фахверк
- Форма: Прямоугольные дома
- Тип кровли: Дома с мансардной крышей
- Отделка: Без отделки
Отправьте свои контакты и мы расчитаем вам смету
Скорее всего вам подойдут следующие проекты домов:
Дом подходит для:
Дом подходит для:
Дом подходит для:











