Проект двухэтажного дома Каркасный дом 7.0x7.0 м «Охотник-2К»
Площадь
77 м 2
Размер дома:
7x7
Этажей:
2
Спален:
4
Санузел:
0
Гараж:
Нет
Баня:
Нет
Терраса:
Нет
Панорамные окна:
Нет
Мастер-спальня:
Нет
О проекте
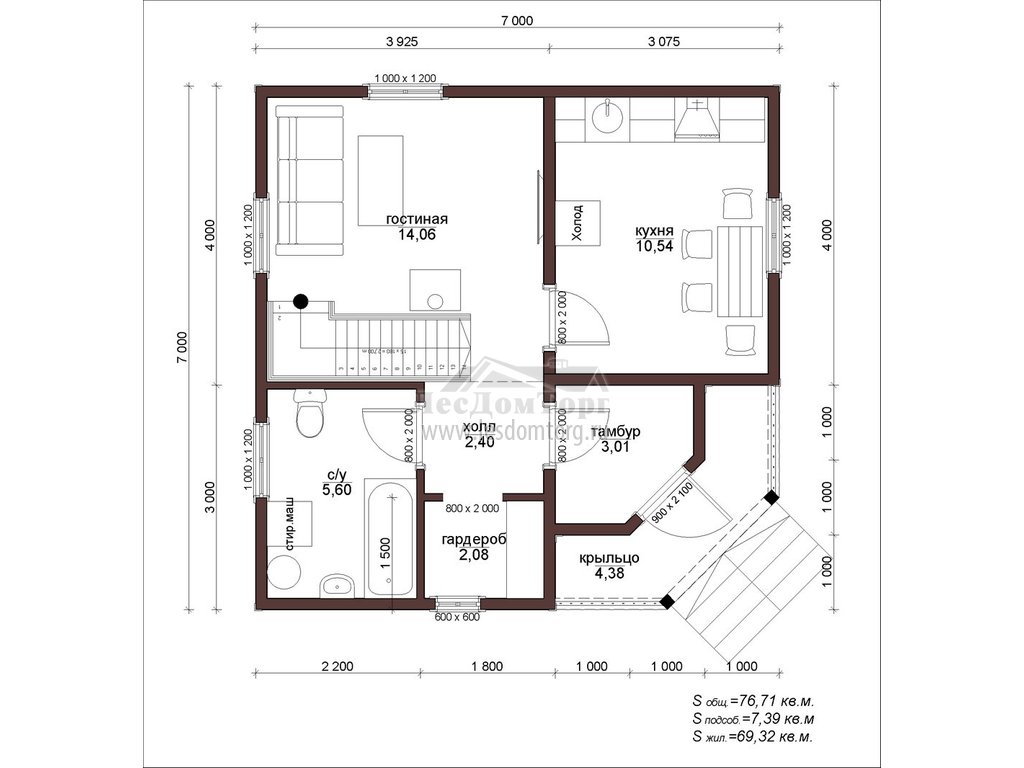
Каркасный коттедж площадью 77 м² в русском стиле — это уют и функциональность. Четыре спальни на двух этажах удивительно компактно организованы, а ондулиновая кровля дополняет традиционный образ. Особенность — встроенные системы хранения, экономящие пространство. Идеальный дом для любителей загородного отдыха.Характеристики
- Общая площадь: 77 м2
- Количество этажей: 2
- Стиль, разновидность: Дома в стиле Русский
- Форма: Прямоугольные дома
- Тип кровли: Дома с многощипцовой крышей
- Отделка: Без отделки
- Размер: 7x7
Отправьте свои контакты и мы расчитаем вам смету
Скорее всего вам подойдут следующие проекты домов:
Проект двухэтажного дома Проект каркасного дома 10х9 - СВЯТОСЛАВ
Семья с двумя детьми
Дом подходит для:
Дом подходит для:
Дом подходит для:
Дом подходит для:










