Проект двухэтажного дома КД-8 Шепард
Дом подходит для:
Площадь
152 м 2
Размер дома:
11,9х9,5
Этажей:
2
Спален:
4
Санузел:
2
Гараж:
Нет
Баня:
Нет
Терраса:
Да
Панорамные окна:
Нет
Мастер-спальня:
Нет
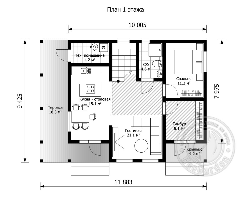
Планировка
Фасады
О проекте
Просторный каркасный дом площадью 152 м² предлагает комфорт для большой семьи. Жилая площадь в 127 м² создает ощущение свободы и простора. Четыре спальни и два санузла продуманы для удобства всех жильцов. Современные материалы и надежная конструкция подчеркивают качество этого жилья.Характеристики
- Общая площадь: 152 м2
- Жилая площадь: 127 м2
- Количество этажей: 2
- Гараж: нет
- Площадь кровли: 159 м2
- Форма: Квадратные дома
- Тип кровли: Дома с многощипцовой крышей
- Пристрой: Дома с верандой
- Отделка: Без отделки
- Отделка фасада: Дома с отделкой планкеном
Материалы и перечень работ
- В стоимость не входит
- Стены наружние: общая толщина 260мм с перекрестным утеплением 200мм
- Пирог пола с утеплением 200мм, перекрытия 100мм
- Все материалы из древесины сухие строганые - лаги, рейки, каркас, стропила и прочее
- Внутренние перегородки с утеплением 100мм
- Крыша с утеплением 250мм
- Паро- и Гидроветрозащитные плёнки DELTA
- Металлочерепица 0,5мм (конек, коньковый аэратор, карнизные и торцевые планки)
- Окна профиль пятикамерный 70мм, цвет белый, двухкамерный стеклопакет с "энергосбережением"
- Двери входные зимние
- В стоимость не входит
- Внешняя обшивка планкен 20х90см , можно заменить на другие материалы по желанию
- В стоимость не входит
- Стены наружние: общая толщина 260мм с перекрестным утеплением 200мм
- Пирог пола с утеплением 200мм, перекрытия 100мм
- Все материалы из древесины сухие строганые - лаги, рейки, каркас, стропила и прочее
- Внутренние перегородки с утеплением 100мм
- Крыша с утеплением 250мм
- Паро- и Гидроветрозащитные плёнки DELTA
- Металлочерепица 0,5мм (конек, коньковый аэратор, карнизные и торцевые планки)
- Окна профиль пятикамерный 70мм, цвет белый, двухкамерный стеклопакет с "энергосбережением"
- Двери входные зимние
- В стоимость не входит
- Внешняя обшивка планкен 20х90см , можно заменить на другие материалы по желанию
Что еще входит в стоимость:
Отправьте свои контакты и мы расчитаем вам смету
Скорее всего вам подойдут следующие проекты домов:
Дом подходит для:
Дом подходит для:
Дом подходит для:













