Проект двухэтажного дома Харт
Дом подходит для:
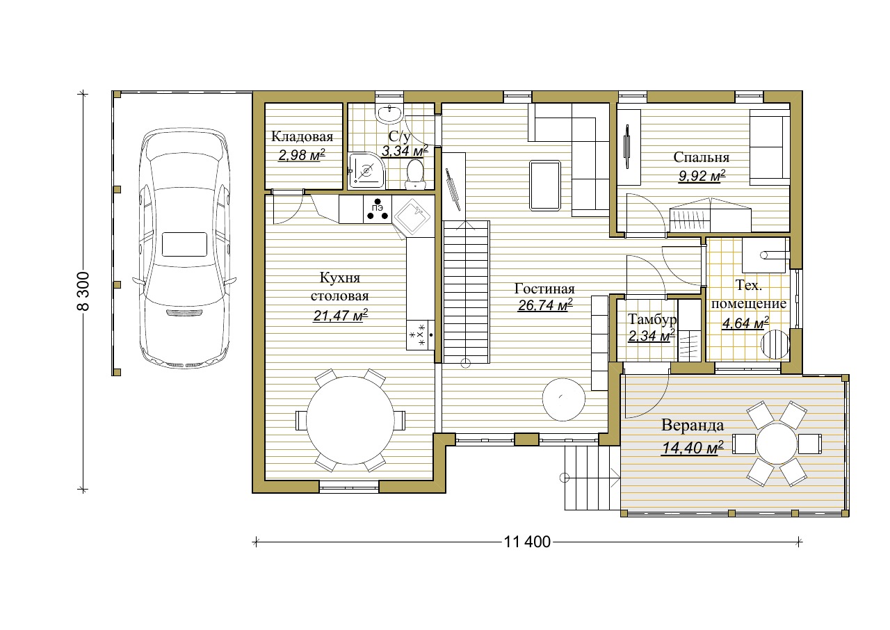
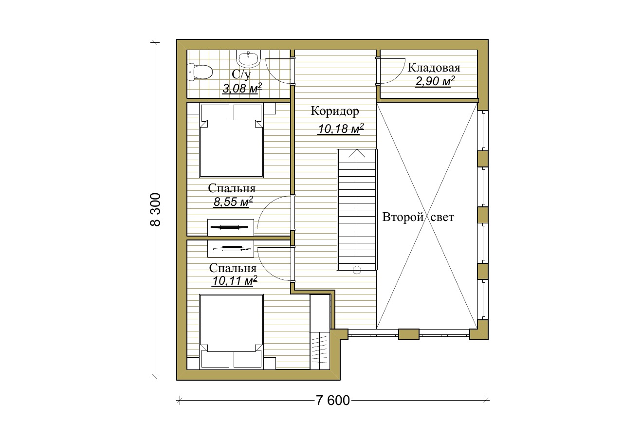
Площадь
161 м 2
Размер дома:
11,4х8,3
Этажей:
2
Спален:
3
Санузел:
2
Гараж:
Нет
Баня:
Нет
Терраса:
Да
Панорамные окна:
Нет
Мастер-спальня:
Нет
Планировка
Фасады
О проекте
Просторный дом площадью 161 м² с жилой площадью 143 м² предназначен для семьи с двумя детьми. Каркасные стены обеспечивают тепло и энергоэффективность, а металлочерепица надежно защищает от непогоды. Интерьеры наполнены светом и простором, создавая атмосферу уюта. Это дом, где современность сочетается с домашним теплом.Характеристики
- Общая площадь: 160.87 м2
- Жилая площадь: 143 м2
- Количество этажей: 2
- Гараж: нет
- Площадь кровли: 166 м2
- Форма: Квадратные дома
- Тип кровли: Дома с двускатной крышей
- Пристрой: Дома с верандой
- Отделка: С инженерными коммуникациями
- Фундамент: Дома со свайным фундаментом
Материалы и перечень работ
- Свайно-винтовой фундамент
- Толщина стенки сваи 4 мм, толщина лопасти 5 мм
- Наваривается металлический оголовок, 200*200 мм
- Двойная гидроизоляция фундамента – гидроизол
- Обвязочный брус 150х150мм
- Усиленные балки 50х200мм 1сорта с шагом не более 575 мм
- Утепление цокольного перекрытия плитами (KNAUF или ROCKWOOL) - 200мм
- Силовой ячеистый каркас с усиливающими ригелями и укосинами – 150 мм
- Пароизоляционный барьер JUTAFOL H 110 c проклейкой стыков скотчем DELTA INSIDE BAND
- Вентилируемый зазор – рейка 20х50мм для прокладки коммуникаций/ внутренняя отделка
- Усиленная стропильная система из доски 50х200мм 1сорта с шагом не более 580 мм
- Утепление крыши плитами (KNAUF или ROCKWOOL) – 200мм!
- Ветрозащитная мембрана JUTAVEK 115 или TYVEK soft
- Кровельное покрытие – металлочерепица, c полимерным покрытием, толщина металла 0,45-0,5мм, цвет на выбор из каталога, а так же коньки, ветровые планки, ендовы, капельники.
- Усиленная обрешетка 20х100мм с шагом 350мм
- ПВХ Rehau blitz - П/О механизм, 3-х камерный профиль, 2-х камерный стеклопакет 32мм с энергосберегающим стеклом подоконниками и отливами, установка по ГОСТ.
- Утепленная дверь с порошковым покрытием, 4-й класс взломостойкости
- Ввод закладных утепленных труб D110мм на глубину промерзания для подключения к септику (ЦК) и скважине/колодцу (ЦВ)
- Установка вентиляционных проходов (грибков) с выводом шахт через чердачное перекрытие в кол-ве 3 шт. (1- кухня, 1- С/у, 1 – фановый для канализации)
- Вентилируемый фасад – доска 20х100мм с обшивкой стен OSB-3-12мм/ внешняя отделка
- Свайно-винтовой фундамент
- Толщина стенки сваи 4 мм, толщина лопасти 5 мм
- Наваривается металлический оголовок, 200*200 мм
- Двойная гидроизоляция фундамента – гидроизол
- Обвязочный брус 150х150мм
- Усиленные балки 50х200мм 1сорта с шагом не более 575 мм
- Утепление цокольного перекрытия плитами (KNAUF или ROCKWOOL) - 200мм
- Силовой ячеистый каркас с усиливающими ригелями и укосинами – 150 мм
- Пароизоляционный барьер JUTAFOL H 110 c проклейкой стыков скотчем DELTA INSIDE BAND
- Вентилируемый зазор – рейка 20х50мм для прокладки коммуникаций/ внутренняя отделка
- Усиленная стропильная система из доски 50х200мм 1сорта с шагом не более 580 мм
- Утепление крыши плитами (KNAUF или ROCKWOOL) – 200мм!
- Ветрозащитная мембрана JUTAVEK 115 или TYVEK soft
- Кровельное покрытие – металлочерепица, c полимерным покрытием, толщина металла 0,45-0,5мм, цвет на выбор из каталога, а так же коньки, ветровые планки, ендовы, капельники.
- Усиленная обрешетка 20х100мм с шагом 350мм
- ПВХ Rehau blitz - П/О механизм, 3-х камерный профиль, 2-х камерный стеклопакет 32мм с энергосберегающим стеклом подоконниками и отливами, установка по ГОСТ.
- Утепленная дверь с порошковым покрытием, 4-й класс взломостойкости
- Ввод закладных утепленных труб D110мм на глубину промерзания для подключения к септику (ЦК) и скважине/колодцу (ЦВ)
- Установка вентиляционных проходов (грибков) с выводом шахт через чердачное перекрытие в кол-ве 3 шт. (1- кухня, 1- С/у, 1 – фановый для канализации)
- Вентилируемый фасад – доска 20х100мм с обшивкой стен OSB-3-12мм/ внешняя отделка
Что еще входит в стоимость:
Отправьте свои контакты и мы расчитаем вам смету
Скорее всего вам подойдут следующие проекты домов:
Дом подходит для:
Дом подходит для:
Дом подходит для:














