Проект двухэтажного дома Хельсинки
Площадь
160 м 2
Размер дома:
10x11
Этажей:
2
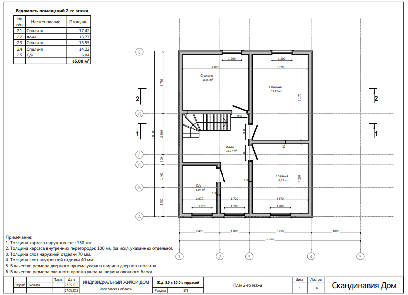
Спален:
4
Санузел:
0
Гараж:
Нет
Баня:
Нет
Терраса:
Нет
Панорамные окна:
Нет
Мастер-спальня:
Нет
О проекте
Просторный двухэтажный каркасный дом площадью 160 м² в финском стиле — это воплощение скандинавского комфорта. Металлочерепица придает ему современный вид, а 4 спальни обеспечивают удобство для всей семьи. Отличный выбор для ценителей северного дизайна.Характеристики
- Общая площадь: 160 м2
- Количество этажей: 2
- Стиль, разновидность: Финские дома
- Форма: Прямоугольные дома
- Тип кровли: Дома с мансардной крышей
- Отделка: Без отделки
- Размер: 10x11
Отправьте свои контакты и мы расчитаем вам смету
Скорее всего вам подойдут следующие проекты домов:
Дом подходит для:
Дом подходит для:
Дом подходит для:










