Проект одноэтажного дома Кирпичный дом 1 этаж / 110 кв. м
Площадь
110 м 2
Размер дома:
Этажей:
1
Спален:
2
Санузел:
0
Гараж:
Нет
Баня:
Нет
Терраса:
Нет
Панорамные окна:
Нет
Мастер-спальня:
Нет
О проекте
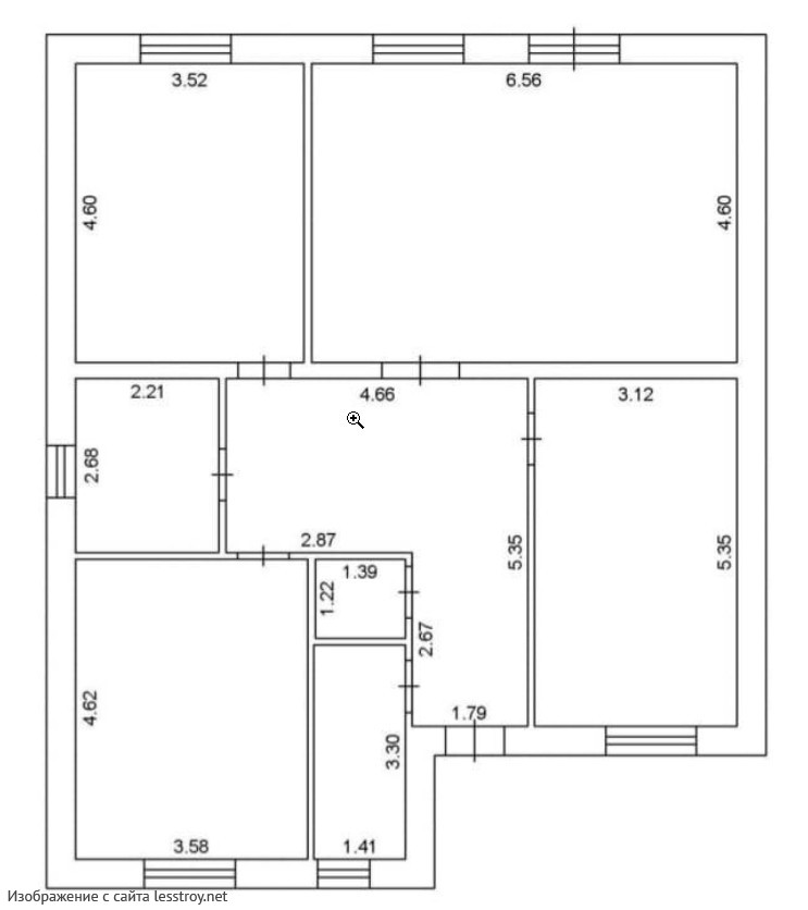
Просторный одноэтажный кирпичный дом площадью 110 м² с двумя спальнями подойдет для комфортного отдыха. Металлочерепица на крыше добавляет современности и надежности. Кирпичные стены создают уют и сохраняют тепло. Этот дом — воплощение практичности и стиля.Характеристики
- Общая площадь: 110 м2
- Количество этажей: 1
- Стиль, разновидность: Дома в ином стиле
- Форма: Прямоугольные дома
- Тип кровли: Дома с четырехскатной крышей (вальмовой)
- Отделка: Без отделки
Отправьте свои контакты и мы расчитаем вам смету
Скорее всего вам подойдут следующие проекты домов:
Дом подходит для:
Проект одноэтажного дома Зеленые дали
Семья с одним ребенком
Дом подходит для:
Дом подходит для:
Проект одноэтажного дома СК-1
Семья с двумя детьми
Дом подходит для:
Дом подходит для:














