Проект одноэтажного дома Классик 105-1
Дом подходит для:
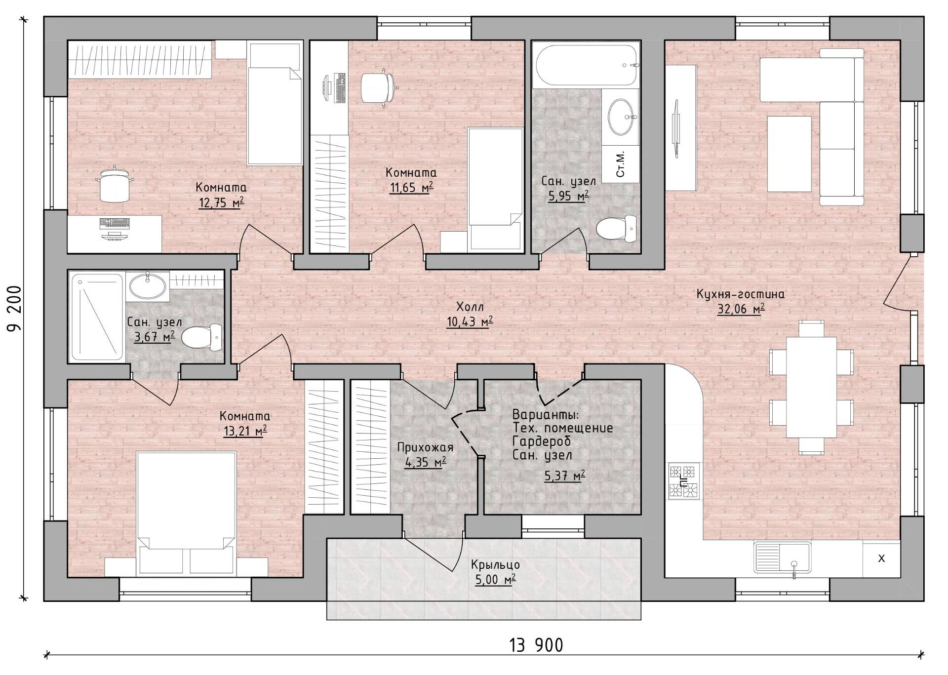
Площадь
105 м 2
Размер дома:
13,9х9,2
Этажей:
1
Спален:
3
Санузел:
2
Гараж:
Нет
Баня:
Нет
Терраса:
Нет
Панорамные окна:
Нет
Мастер-спальня:
Нет
Планировка
Характеристики
- Общая площадь: 105 м2
- Жилая площадь: 81 м2
- Количество этажей: 1
- Гараж: нет
- Площадь кровли: 109 м2
- Отделка: Без отделки
- Фундамент: Дома с плитным фундаментом
Материалы и перечень работ
- Фундамент дома, крыльца — монолитная железобетонная плита 250мм.
- Стеновой материал — газобетонные блоки 375 мм и 300мм, D400
- Перегородки — газобетонные блоки 100мм, D500
- Перекрытие — деревянные балки с утеплением 200мм минеральной ватой, пароизоляция
- Кровля двухскатная — покрытие металлочерепица цвет RAL 7024
- Водосточная система – ПВХ материал, цвет RAL 7024
- Подшивка карнизов – софиты ПВХ цвет RAL 9003
- Снегозадержатели
- Окна — Novotex 70 (Фурнитура Vorne) цвет RAL 7024
- В стоимость не входит
- Фасад — штукатурка с окраской в 2 слоя
- Фундамент дома, крыльца — монолитная железобетонная плита 250мм.
- Стеновой материал — газобетонные блоки 375 мм и 300мм, D400
- Перегородки — газобетонные блоки 100мм, D500
- Перекрытие — деревянные балки с утеплением 200мм минеральной ватой, пароизоляция
- Кровля двухскатная — покрытие металлочерепица цвет RAL 7024
- Водосточная система – ПВХ материал, цвет RAL 7024
- Подшивка карнизов – софиты ПВХ цвет RAL 9003
- Снегозадержатели
- Окна — Novotex 70 (Фурнитура Vorne) цвет RAL 7024
- В стоимость не входит
- Фасад — штукатурка с окраской в 2 слоя
Что еще входит в стоимость:
Отправьте свои контакты и мы расчитаем вам смету
Скорее всего вам подойдут следующие проекты домов:
Проект одноэтажного дома одноэтажный 90 м2
Семья с двумя детьми
Дом подходит для:
Дом подходит для:
Проект одноэтажного дома одноэтажный 89,9 м2
Семья с двумя детьми
Дом подходит для:
Дом подходит для:
Проект одноэтажного дома Flat-01
Семья с двумя детьми
Дом подходит для:
Дом подходит для:








