Проект двухэтажного дома Комфорт
Дом подходит для:
Площадь
150 м 2
Размер дома:
10,1 x 9.4
Этажей:
2
Спален:
4
Санузел:
2
Гараж:
Нет
Баня:
Нет
Терраса:
Нет
Панорамные окна:
Да
Мастер-спальня:
Нет
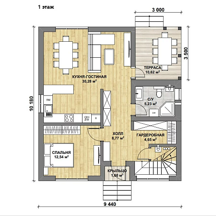
Планировка
Фасады
О проекте
Дом, который становится вашим убежищем. Свободная планировка в 150 м² вдохновляет на перемены. 128 м² — сбалансированный объём для комфортной жизни. Утренние рутины проще с 2 санузла. металлочерепица придаёт дому выразительность и надёжность. Фундамент обеспечивает надежность и долговечность конструкции. Конструкция из Каркас обеспечивает прочность и долговечность.Характеристики
- Общая площадь: 150 м2
- Жилая площадь: 128 м2
- Количество этажей: 2
- Гараж: нет
- Площадь кровли: 155 м2
- Отделка: Без отделки
- Фундамент: Дома со свайным фундаментом
Материалы и перечень работ
- Перекрытие 1 этажа - утепление 200/260 мм
- Сваи забивные железобетонные длиной до 3 м
- Сетка от грызунов по всему периметру перекрытия
- Ростверк из строенной доски камерной сушки 195/45 мм
- Стены наружные - утепление 170/220 мм:
- Доска сухая строганая камерной сушки 145/45 мм
- Наружная теплозвукоизоляционная плита Белтермо 20 мм
- Утеплитель Изорок 150 мм
- Фольгированная пароизоляция Ютафол или аналог
- Стропило - доска сухая строганая камерной сушки 195/45 мм
- Доп. брусок строганый камерной сушки 45/45 мм
- Утеплитель Изорок или его аналог 250 мм
- Фольгированная пароизоляция Ютафол или аналог
- Металлочерепица М28 0,5 мм Rooftop Glance - цвет серый графит
- Двухкамерные энергоэффективные стеклопакеты, 5-камерный профиль ПВХ Brusbox - 70 мм
- Немецкая фурнитура Roto
- Наружная ламинация - цвет графит
- Входная металлическая дверь с терморазрывом
- Проект без инженерного обустройства
- Главный и задний фасад - фиброцементные японские панели KMEW
- Боковой фасад - фасадная плитка HAUBERK
- Отделка цоколя – панели из каменной крошки, цвет серый графит
- Перекрытие 1 этажа - утепление 200/260 мм
- Сваи забивные железобетонные длиной до 3 м
- Сетка от грызунов по всему периметру перекрытия
- Ростверк из строенной доски камерной сушки 195/45 мм
- Стены наружные - утепление 170/220 мм:
- Доска сухая строганая камерной сушки 145/45 мм
- Наружная теплозвукоизоляционная плита Белтермо 20 мм
- Утеплитель Изорок 150 мм
- Фольгированная пароизоляция Ютафол или аналог
- Стропило - доска сухая строганая камерной сушки 195/45 мм
- Доп. брусок строганый камерной сушки 45/45 мм
- Утеплитель Изорок или его аналог 250 мм
- Фольгированная пароизоляция Ютафол или аналог
- Металлочерепица М28 0,5 мм Rooftop Glance - цвет серый графит
- Двухкамерные энергоэффективные стеклопакеты, 5-камерный профиль ПВХ Brusbox - 70 мм
- Немецкая фурнитура Roto
- Наружная ламинация - цвет графит
- Входная металлическая дверь с терморазрывом
- Проект без инженерного обустройства
- Главный и задний фасад - фиброцементные японские панели KMEW
- Боковой фасад - фасадная плитка HAUBERK
- Отделка цоколя – панели из каменной крошки, цвет серый графит
Что еще входит в стоимость:
Отправьте свои контакты и мы расчитаем вам смету
Скорее всего вам подойдут следующие проекты домов:
Дом подходит для:
Дом подходит для:
Дом подходит для:













