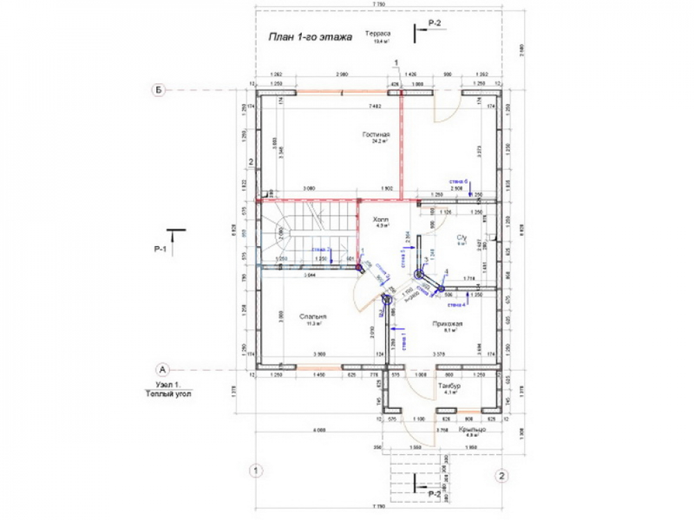
Проект двухэтажного дома Кубик
Площадь
142 м 2
Размер дома:
7x9
Этажей:
2
Спален:
3
Санузел:
0
Гараж:
Нет
Баня:
Нет
Терраса:
Нет
Панорамные окна:
Нет
Мастер-спальня:
Нет
О проекте
Интерьеры, где зоны плавно перетекают друг в друга. 142 м² позволяют создать как уединённые, так и общие зоны. Дом спроектирован в духе дома в классическом стиле. Двухэтажная эргономичная планировка обеспечивает комфортную навигацию внутри дома. Наличие 3 спальни удовлетворит запросы семьи с детьми.Характеристики
- Общая площадь: 142 м2
- Количество этажей: 2
- Стиль, разновидность: Дома в ином стиле
- Форма: Прямоугольные дома
- Тип кровли: Дома с иной крышей
- Отделка: Без отделки
- Размер: 7x9
Отправьте свои контакты и мы расчитаем вам смету
Скорее всего вам подойдут следующие проекты домов:
Проект двухэтажного дома Каркасный дом 8х8 (8 на 8), проект двух этажного дома
Семья с одним ребенком
Дом подходит для:
Дом подходит для:
Дом подходит для:
Дом подходит для:








