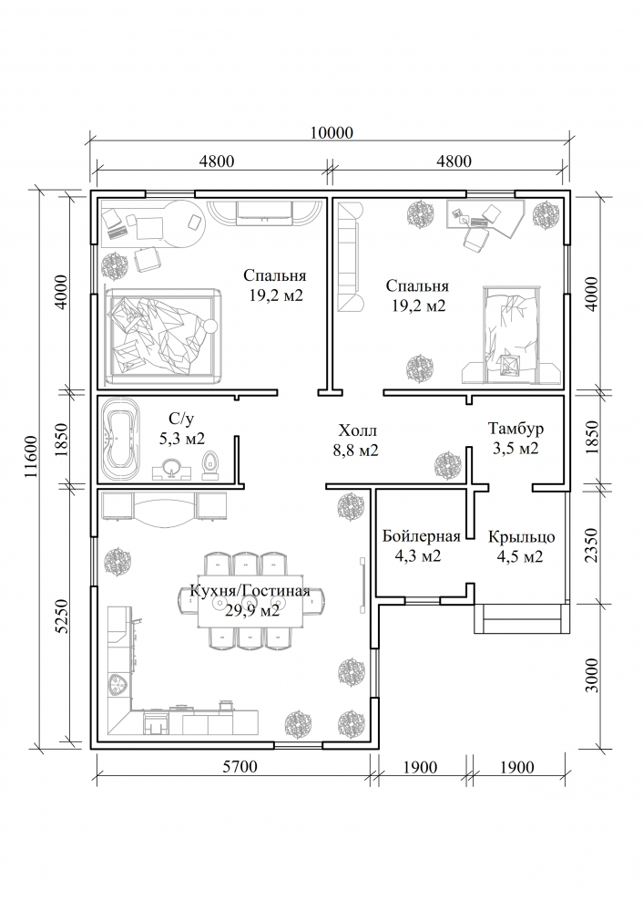
Проект одноэтажного дома Марокко
Площадь
103 м 2
Размер дома:
10x12
Этажей:
1
Спален:
2
Санузел:
0
Гараж:
Нет
Баня:
Нет
Терраса:
Нет
Панорамные окна:
Нет
Мастер-спальня:
Нет
О проекте
Дом, где приятно встречать гостей и проводить вечеринки. 103 м² открывают свободу для жизни без компромиссов. Одноэтажная удобная планировка создаёт идеальные условия для жизни всей семьи. Выбор Каркас обусловлен его теплоизоляционными свойствами. Архитектура выполнена в стиле дома в классическом стиле.Характеристики
- Общая площадь: 103 м2
- Количество этажей: 1
- Стиль, разновидность: Дома в ином стиле
- Тип кровли: Дома с иной крышей
- Отделка: Без отделки
- Размер: 10x12
Отправьте свои контакты и мы расчитаем вам смету
Скорее всего вам подойдут следующие проекты домов:
Дом подходит для:
Дом подходит для:
Проект одноэтажного дома Каркасный дом 9.5х12 (Проект К1-7)
Семья с одним ребенком
Дом подходит для:
Дом подходит для:








