Проект двухэтажного дома Молоди
Дом подходит для:
Площадь
146 м 2
Размер дома:
7x9
Этажей:
2
Спален:
5
Санузел:
2
Гараж:
Нет
Баня:
Нет
Терраса:
Да
Панорамные окна:
Нет
Мастер-спальня:
Нет
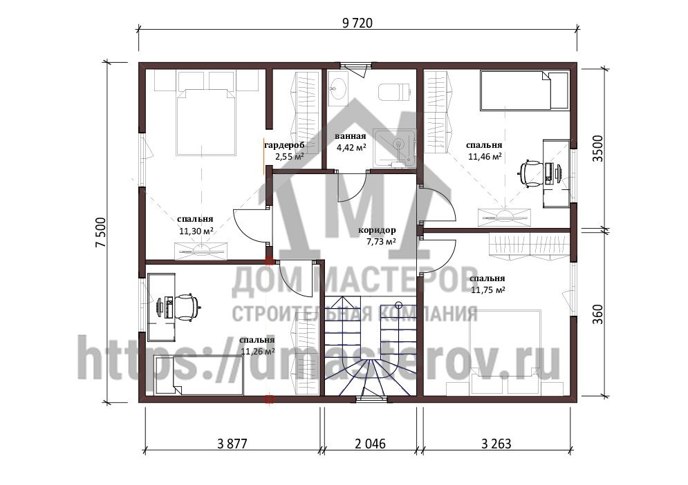
Планировка
Фасады
О проекте
Практичный каркасный дом площадью 146 м² — идеальное решение для семейного комфорта. Четыре уютные спальни обеспечивают личное пространство для каждого, а продуманная планировка создает ощущение простора и гармонии.Металлочерепица надежно защищает от непогоды, а элементы русского стиля в экстерьере добавляют тепла и узнаваемости. Этот дом сочетает в себе современные технологии строительства и традиционный уют, создавая атмосферу, в которой хочется остаться навсегда.
Характеристики
- Общая площадь: 146 м2
- Жилая площадь: 119 м2
- Количество этажей: 2
- Гараж: нет
- Площадь кровли: 157 м2
- Форма: Квадратные дома
- Тип кровли: Дома с двускатной крышей
- Пристрой: Дома с верандой
- Отделка: Без отделки
- Отделка фасада: Дома с отделкой имитацией бруса
- Фундамент: Дома со свайным фундаментом
Материалы и перечень работ
- Фундамент свайный (свайно-винтовой)
- Свая покрашена защитным составом, диаметр - 108мм.
- Верх сваи закрывается оголовком 20 на 20 см.
- Толщина лопасти сваи 5 мм.
- Установка сваи с помощью специализированной техники.
- Наружные стены, толщиной 190 мм. с устройством вентилируемого фасада.
- Каркас из сухой строганной доски (камерная сушка) 40х150мм. Шаг стоек: 580мм.
- Диффузионная мембрана.
- Внутренние перегородки: Каркас из сухой строганной доски (камерная сушка) 40х150мм. и 40х100мм. Шаг стоек: 580мм.
- Обвязка цоколя – брус 150х150мм.
- Стропила изготавливаются из доски 50х150мм, с шагом 580мм.
- Шаговая обрешетка изготавливается из доски 25х100мм, с шагом 350мм.
- Диффузионная мембрана.
- Металлочерепица
- Металлическая утепленная дверь 4-го класса защиты производства России.
- Пластиковые окна Novotex. Базовые размеры.
- В стоимость не входит
- Влагостойкая плита OSB-3, толщиной 9мм. (класс E1).
- Контрбрус 35Х35мм (вентилируемый фасад).
- Фундамент свайный (свайно-винтовой)
- Свая покрашена защитным составом, диаметр - 108мм.
- Верх сваи закрывается оголовком 20 на 20 см.
- Толщина лопасти сваи 5 мм.
- Установка сваи с помощью специализированной техники.
- Наружные стены, толщиной 190 мм. с устройством вентилируемого фасада.
- Каркас из сухой строганной доски (камерная сушка) 40х150мм. Шаг стоек: 580мм.
- Диффузионная мембрана.
- Внутренние перегородки: Каркас из сухой строганной доски (камерная сушка) 40х150мм. и 40х100мм. Шаг стоек: 580мм.
- Обвязка цоколя – брус 150х150мм.
- Стропила изготавливаются из доски 50х150мм, с шагом 580мм.
- Шаговая обрешетка изготавливается из доски 25х100мм, с шагом 350мм.
- Диффузионная мембрана.
- Металлочерепица
- Металлическая утепленная дверь 4-го класса защиты производства России.
- Пластиковые окна Novotex. Базовые размеры.
- В стоимость не входит
- Влагостойкая плита OSB-3, толщиной 9мм. (класс E1).
- Контрбрус 35Х35мм (вентилируемый фасад).
Что еще входит в стоимость:
Отправьте свои контакты и мы расчитаем вам смету
Скорее всего вам подойдут следующие проекты домов:
Дом подходит для:
Дом подходит для:
Дом подходит для:










