Проект двухэтажного дома Надежда
Площадь
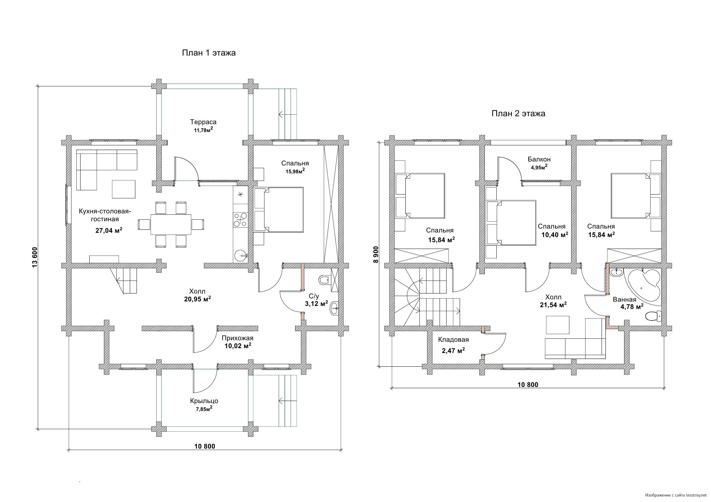
180 м 2
Размер дома:
13x11
Этажей:
2
Спален:
3
Санузел:
0
Гараж:
Нет
Баня:
Нет
Терраса:
Нет
Панорамные окна:
Нет
Мастер-спальня:
Нет
О проекте
В проекте предусмотрены зоны для разных видов деятельности. 190 м² — пространство, в котором легко дышать. Черепица придаёт дому выразительность и надёжность. Двухэтажная современная планировка обеспечивает практичное распределение комнат. Дом спроектирован в духе дома в стиле фахверк.Характеристики
- Общая площадь: 180 м2
- Количество этажей: 2
- Стиль, разновидность: Дома в ином стиле
- Форма: Прямоугольные дома
- Тип кровли: Дома с двускатной крышей
- Отделка: Без отделки
- Размер: 13x11
Отправьте свои контакты и мы расчитаем вам смету
Скорее всего вам подойдут следующие проекты домов:
Дом подходит для:
Дом подходит для:
Дом подходит для:











