Проект одноэтажного дома Норвегия XL
Дом подходит для:
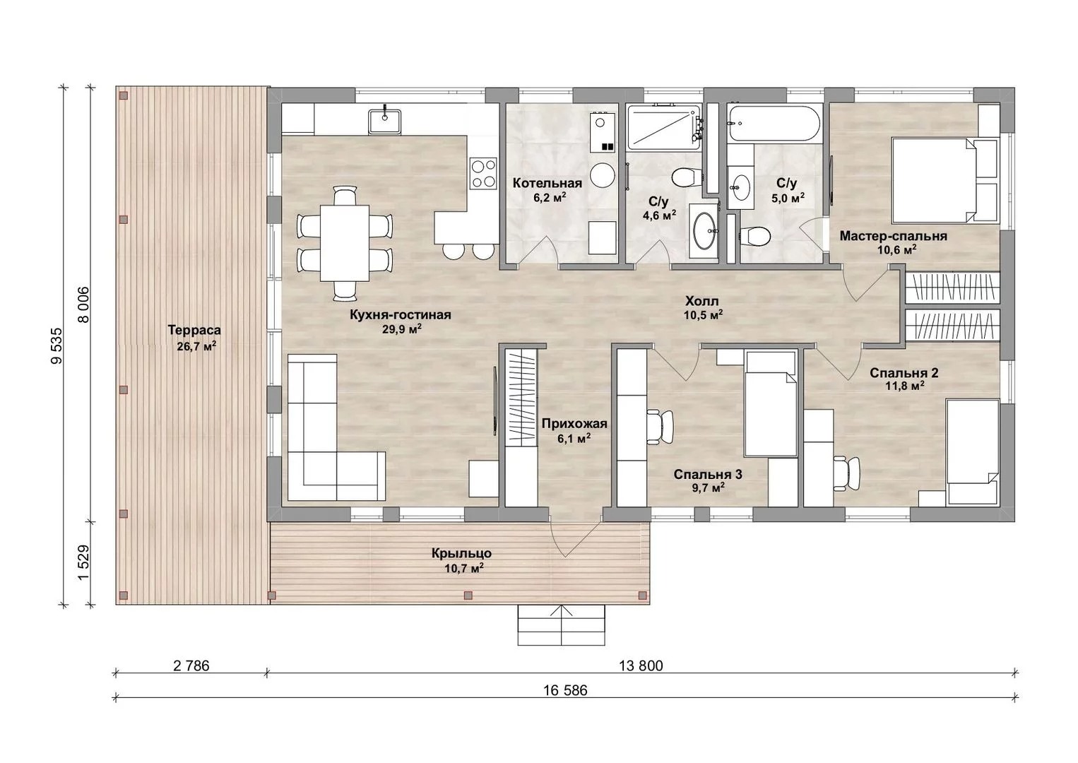
Площадь
132 м 2
Размер дома:
16,5х9,5
Этажей:
1
Спален:
3
Санузел:
2
Гараж:
Нет
Баня:
Нет
Терраса:
Да
Панорамные окна:
Нет
Мастер-спальня:
Нет
Планировка
Фасады
О проекте
Просторный дом площадью 132 м² в скандинавском стиле предлагает комфортное решение для семьи с детьми. 96 м² жилого пространства организованы рационально, создавая ощущение тепла и защищенности. Панельные стены делают дом энергоэффективным, а продуманные детали интерьера добавляют уюта. Это жилье, где северная эстетика сочетается с домашним комфортом.Характеристики
- Общая площадь: 132 м2
- Жилая площадь: 96 м2
- Количество этажей: 1
- Гараж: нет
- Площадь кровли: 137 м2
- Стиль, разновидность: Дома в стиле Лофт
- Форма: Квадратные дома
- Тип кровли: Дома с двускатной крышей
- Пристрой: Дома с террасой
- Отделка: Под ключ
Материалы и перечень работ
- В стоимость не входит
- Каркас - строганная доска камерной сушки; 40х140 мм, шаг 590 мм
- Утепление - Knauf 200 мм
- Настил кровли - профлист крашенный 0,45 мм
- Двери и окна - ПВХ с усиленной фурнитурой
- В стоимость не входит
- Наружная отделка - имитация бруса с покраской на производстве
- В стоимость не входит
- Каркас - строганная доска камерной сушки; 40х140 мм, шаг 590 мм
- Утепление - Knauf 200 мм
- Настил кровли - профлист крашенный 0,45 мм
- Двери и окна - ПВХ с усиленной фурнитурой
- В стоимость не входит
- Наружная отделка - имитация бруса с покраской на производстве
Что еще входит в стоимость:
Отправьте свои контакты и мы расчитаем вам смету
Скорее всего вам подойдут следующие проекты домов:
Проект одноэтажного дома Сканди XL
Семья с двумя детьми
Дом подходит для:
Дом подходит для:


