Проект одноэтажного дома Сканди XL
Дом подходит для:
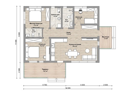
Площадь
112 м 2
Размер дома:
14,0х11,5
Этажей:
1
Спален:
3
Санузел:
2
Гараж:
Нет
Баня:
Нет
Терраса:
Да
Панорамные окна:
Нет
Мастер-спальня:
Нет
Планировка
Фасады
О проекте
Стильный дом площадью 112 м² с многощипцовой крышей создан для тех, кто ценит индивидуальность и комфорт. 81 м² жилой зоны организованы с умом, создавая атмосферу уюта и покоя. Панельные стены обеспечивают энергоэффективность, а характерные архитектурные элементы придают дому особый шарм. Это место, где оригинальный дизайн служит созданию комфортной среды.Характеристики
- Общая площадь: 112 м2
- Жилая площадь: 81 м2
- Количество этажей: 1
- Гараж: нет
- Площадь кровли: 114 м2
- Стиль, разновидность: Дома в стиле Лофт
- Форма: Квадратные дома
- Тип кровли: Дома с многощипцовой крышей
- Пристрой: Дома с террасой
- Отделка: Под ключ
Материалы и перечень работ
- В стоимость не входит
- Каркас - строганная доска камерной сушки; 40х140 мм, шаг 590 мм
- Утепление - Knauf 200 мм
- Настил кровли - профлист крашенный 0,45 мм
- Двери и окна - ПВХ с усиленной фурнитурой
- В стоимость не входит
- Наружная отделка - имитация бруса с покраской на производстве + профлист крашенный 0,45 мм
- В стоимость не входит
- Каркас - строганная доска камерной сушки; 40х140 мм, шаг 590 мм
- Утепление - Knauf 200 мм
- Настил кровли - профлист крашенный 0,45 мм
- Двери и окна - ПВХ с усиленной фурнитурой
- В стоимость не входит
- Наружная отделка - имитация бруса с покраской на производстве + профлист крашенный 0,45 мм
Что еще входит в стоимость:
Отправьте свои контакты и мы расчитаем вам смету
Скорее всего вам подойдут следующие проекты домов:
Проект одноэтажного дома Норвегия XL
Семья с двумя детьми
Дом подходит для:
Дом подходит для:



