Проект двухэтажного дома Новара
Дом подходит для:
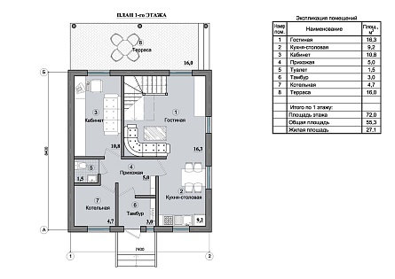
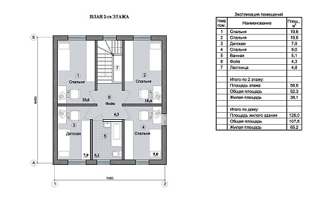
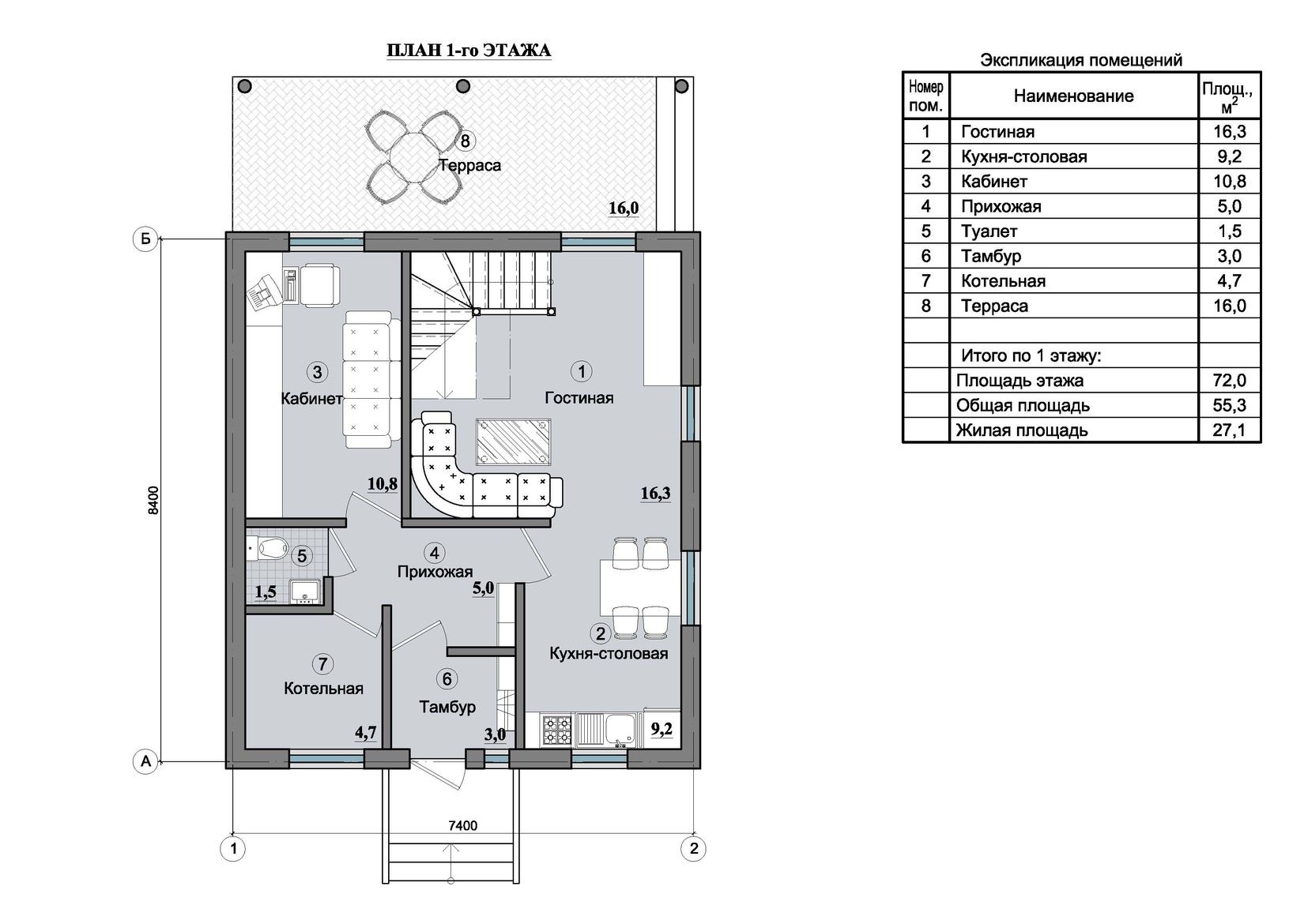
Площадь
115 м 2
Размер дома:
8,4х7,4
Этажей:
2
Спален:
3
Санузел:
2
Гараж:
Нет
Баня:
Нет
Терраса:
Да
Панорамные окна:
Нет
Мастер-спальня:
Нет
Планировка
Фасады
О проекте
Стильный дом площадью 115 м² с жилыми 97 м² предназначен для семьи с двумя детьми. Кирпичные стены обеспечивают прочность и тепло, а металлочерепица надежно защищает от непогоды. Интерьеры наполнены светом и уютом, создавая атмосферу домашнего очага. Здесь все продумано для гармоничной жизни.Характеристики
- Общая площадь: 115 м2
- Жилая площадь: 97 м2
- Количество этажей: 2
- Гараж: нет
- Площадь кровли: 119 м2
- Форма: Квадратные дома
- Тип кровли: Дома с четырехскатной крышей (вальмовой)
- Пристрой: Дома с верандой
- Отделка: С инженерными коммуникациями
- Отделка фасада: Дома с отделкой под искуственный камень
- Фундамент: Дома с плитным фундаментом
Материалы и перечень работ
- Монолитная железобетонная плита 300мм (бетон М350, армирование. ø12мм, шаг 200 мм; песчаное основание 200мм; щебень 150мм; гидроизоляционная мембрана Planter
- Газобетонные блоки Bonolit D400 400мм (внешние несущие стены); 250мм (внутренние несущие стены); армирование двухрядное арматурой А500с ø8мм; тонкослойная кладка на клей
- Оконные и дверные перемычки из U-блоков с армированием и бетонированием; утепление 50мм
- Монолитное железобетонное перекрытие 180мм (бетон М350, армирование. ø12мм, шаг 200 мм, усилением по проекту); утепление по торцу; доборная кладка по торцу
- Монолитный железобетонный армопояс по несущим стенам (бетон М350, армирование. Ø8-10мм); утепление по торцу; доборная кладка по торцу
- Перекрытие по деревянным балкам сечением 200х50мм с обработкой огне-биозащитой
- Стропильная система (стропила сечением 200х50мм); контробрешетка 50х50мм, обрешетка 100х25мм, затяжка 150х50мм, стойка 100х100мм. Гидроизоляционная мембрана. Обработка пиломатериала огне-биозащитой.
- Металлочерепица Grand Line 0.5мм
- В стоимость не входит
- Ввод всех коммуникаций: канализационные стояки (канализационная труба 110мм с утеплением); водоснабжение (ПНД труба 32мм с утеплением); закладная под электроснабжением (ПНД труба 50мм)
- В стоимость не входит
- Монолитная железобетонная плита 300мм (бетон М350, армирование. ø12мм, шаг 200 мм; песчаное основание 200мм; щебень 150мм; гидроизоляционная мембрана Planter
- Газобетонные блоки Bonolit D400 400мм (внешние несущие стены); 250мм (внутренние несущие стены); армирование двухрядное арматурой А500с ø8мм; тонкослойная кладка на клей
- Оконные и дверные перемычки из U-блоков с армированием и бетонированием; утепление 50мм
- Монолитное железобетонное перекрытие 180мм (бетон М350, армирование. ø12мм, шаг 200 мм, усилением по проекту); утепление по торцу; доборная кладка по торцу
- Монолитный железобетонный армопояс по несущим стенам (бетон М350, армирование. Ø8-10мм); утепление по торцу; доборная кладка по торцу
- Перекрытие по деревянным балкам сечением 200х50мм с обработкой огне-биозащитой
- Стропильная система (стропила сечением 200х50мм); контробрешетка 50х50мм, обрешетка 100х25мм, затяжка 150х50мм, стойка 100х100мм. Гидроизоляционная мембрана. Обработка пиломатериала огне-биозащитой.
- Металлочерепица Grand Line 0.5мм
- В стоимость не входит
- Ввод всех коммуникаций: канализационные стояки (канализационная труба 110мм с утеплением); водоснабжение (ПНД труба 32мм с утеплением); закладная под электроснабжением (ПНД труба 50мм)
- В стоимость не входит
Что еще входит в стоимость:
Отправьте свои контакты и мы расчитаем вам смету
Скорее всего вам подойдут следующие проекты домов:
Дом подходит для:
Дом подходит для:









