Проект одноэтажного дома Одноэтажный дом из клееного бруса Кудьма-164
Площадь
165 м 2
Размер дома:
Этажей:
1
Спален:
3
Санузел:
0
Гараж:
Нет
Баня:
Нет
Терраса:
Нет
Панорамные окна:
Нет
Мастер-спальня:
Нет
О проекте
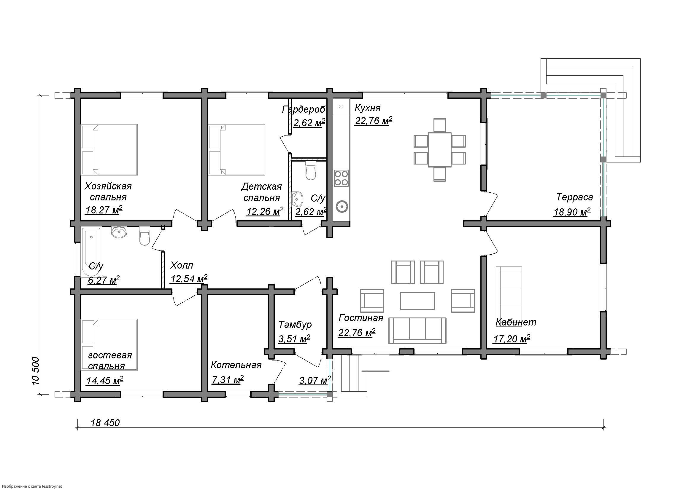
Проект, где гардероб организован с умом и элегантностью. Уют начинается с 165 м². Одноэтажная эргономичная планировка обеспечивает практичное распределение комнат. Дом спроектирован в духе финские дома. Наличие 3 спальни удовлетворит запросы семьи с детьми.Характеристики
- Общая площадь: 165 м2
- Количество этажей: 1
- Стиль, разновидность: Финские дома
- Форма: Квадратные дома
- Тип кровли: Дома с двускатной крышей
- Отделка: Без отделки
Отправьте свои контакты и мы расчитаем вам смету
Скорее всего вам подойдут следующие проекты домов:
Дом подходит для:
Дом подходит для:
Дом подходит для:







