Проект одноэтажного дома Одноэтажный коттедж из клееного бруса в скандинавском стиле
Площадь
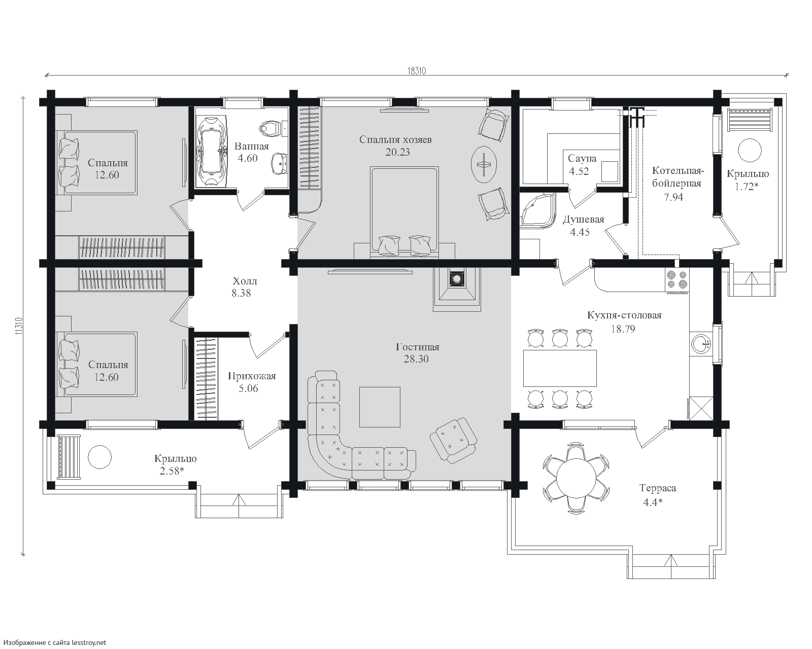
136 м 2
Размер дома:
11x18
Этажей:
1
Спален:
3
Санузел:
0
Гараж:
Нет
Баня:
Нет
Терраса:
Нет
Панорамные окна:
Нет
Мастер-спальня:
Нет
О проекте
Эко-дружелюбный дизайн.Рационально распределённые 84 м² делают жильё удобным. Бревна делает дом надёжным при любой погоде. Количество спален — 2, делая планировку гибкой. Архитектура выполнена в стиле дома в стиле шале.Характеристики
- Общая площадь: 136 м2
- Количество этажей: 1
- Стиль, разновидность: Финские дома
- Форма: Прямоугольные дома
- Тип кровли: Дома с мансардной крышей
- Отделка: Без отделки
- Размер: 11x18
Отправьте свои контакты и мы расчитаем вам смету
Скорее всего вам подойдут следующие проекты домов:
Дом подходит для:
Дом подходит для:
Проект одноэтажного дома Проект брусового дома 7,5х8,5 ДБ-74 Лесстрой
Семья с одним ребенком
Дом подходит для:
Дом подходит для:












