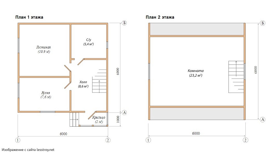
Проект двухэтажного дома Орбита 2
Площадь
54 м 2
Размер дома:
6x6
Этажей:
2
Спален:
1
Санузел:
0
Гараж:
Нет
Баня:
Нет
Терраса:
Нет
Панорамные окна:
Нет
Мастер-спальня:
Нет
О проекте
Пространство, где собирается вся семья. Площадь в 227 м² позволяет чувствовать себя свободно. Двухэтажная грамотная планировка делает зонирование более логичным. Крыша из металлочерепица подчёркивает современный облик дома. Выбор каркаса обусловлен его теплоизоляционными свойствами.Характеристики
- Общая площадь: 54 м2
- Количество этажей: 2
- Стиль, разновидность: Дома в ином стиле
- Форма: Квадратные дома
- Тип кровли: Дома с мансардной крышей
- Отделка: Без отделки
- Размер: 6x6













