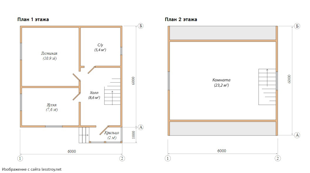
Проект двухэтажного дома Орбита
Площадь
56 м 2
Размер дома:
6x6
Этажей:
2
Спален:
1
Санузел:
0
Гараж:
Нет
Баня:
Нет
Терраса:
Нет
Панорамные окна:
Нет
Мастер-спальня:
Нет
О проекте
Компактный каркасный дом площадью 56 м² с одной спальней идеален для временного проживания. Металлочерепица придает ему современный и практичный вид.Характеристики
- Общая площадь: 56 м2
- Количество этажей: 2
- Стиль, разновидность: Дома в ином стиле
- Форма: Квадратные дома
- Тип кровли: Дома с двускатной крышей
- Отделка: Без отделки
- Размер: 6x6













