Проект одноэтажного дома Остфольд 107
Дом подходит для:
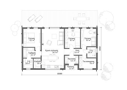
Площадь
107 м 2
Размер дома:
15 x 8,4
Этажей:
1
Спален:
3
Санузел:
2
Гараж:
Нет
Баня:
Нет
Терраса:
Нет
Панорамные окна:
Да
Мастер-спальня:
Да
Планировка
Характеристики
- Общая площадь: 107 м2
- Жилая площадь: 88 м2
- Количество этажей: 1
- Гараж: нет
- Высота дома: 5 м
- Площадь кровли: 111 м2
- Отделка: Без отделки
- Фундамент: Дома с плитным фундаментом
Материалы и перечень работ
- Песчаное основание 300мм
- Закладные под коммуникации
- Тёплые водяные полы
- Трубы ХВС/ГВС и канализации
- Дренажная и ливневая канализации
- Стеновые панели с готовым фасадом и окнами
- Отдельные конструктивные элементы
- Крепёжные элементы
- Кровельные панели LVL- брус
- Межэтажные панели LVL- брус
- Монтаж ливневой системы и снегозадержания
- Временные строительная лестница и дверь
- Не предусмотрена
- Монтаж панелей домокомплекта
- Укладка кровельного покрытия
- Песчаное основание 300мм
- Закладные под коммуникации
- Тёплые водяные полы
- Трубы ХВС/ГВС и канализации
- Дренажная и ливневая канализации
- Стеновые панели с готовым фасадом и окнами
- Отдельные конструктивные элементы
- Крепёжные элементы
- Кровельные панели LVL- брус
- Межэтажные панели LVL- брус
- Монтаж ливневой системы и снегозадержания
- Временные строительная лестница и дверь
- Не предусмотрена
- Монтаж панелей домокомплекта
- Укладка кровельного покрытия
Что еще входит в стоимость:
Отправьте свои контакты и мы расчитаем вам смету
Скорее всего вам подойдут следующие проекты домов:
Проект одноэтажного дома Woodhouse 120 Pro
Семья с двумя детьми
Дом подходит для:
Дом подходит для:
Проект одноэтажного дома FL Next 103
Семья с двумя детьми
Дом подходит для:
Дом подходит для:
Проект одноэтажного дома Модерн
Семья с одним ребенком
Дом подходит для:
Дом подходит для:









