Проект одноэтажного дома Оушенсайд
Дом подходит для:
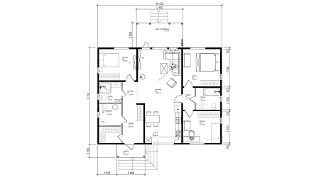
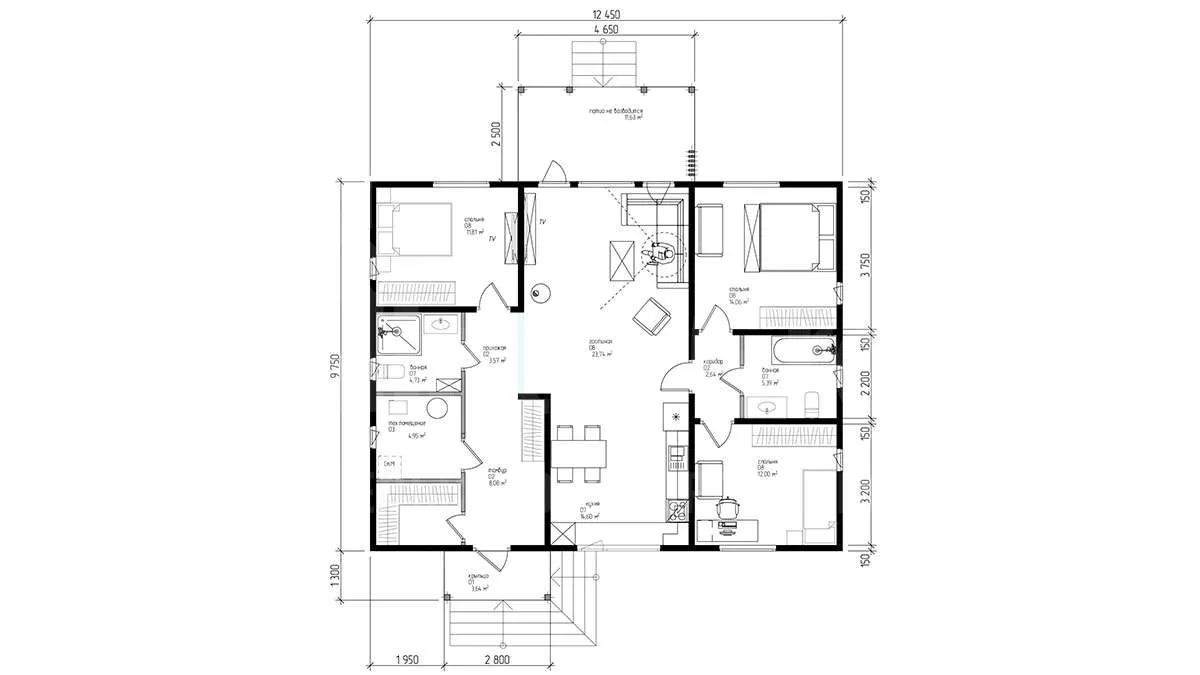
Площадь
121 м 2
Размер дома:
9,7х12,4
Этажей:
1
Спален:
3
Санузел:
2
Гараж:
Нет
Баня:
Нет
Терраса:
Нет
Панорамные окна:
Нет
Мастер-спальня:
Нет
Планировка
Фасады
О проекте
Просторный дом площадью 121 м² с жилыми 97 м² — это воплощение семейного тепла и заботы. Три спальни и два санузла создают удобство для жизни семьи с двумя детьми, а натуральные материалы стен дарят ощущение покоя. Просторные комнаты наполнены светом, а естественность линий фасада добавляет дому гармоничности. Здесь каждый уголок продуман для комфортной жизни.Характеристики
- Общая площадь: 121 м2
- Жилая площадь: 97 м2
- Количество этажей: 1
- Гараж: нет
- Площадь кровли: 129 м2
- Отделка: Без отделки
- Фундамент: Дома с ленточным фундаментом
Материалы и перечень работ
- Высота ростверка 600мм, ширина под наружные стены 400мм, под внутренние 300мм
- Бетон сертифицированный марки М300 (заводской)
- Каркас из арматуры: продольная - Ø12мм с загибом по углам; поперечная - Ø8мм
- Песчаная подушка 400мм с трамбовкой
- Устройство геотекстиля
- Внешние стены - керамический поризованый блок 250x375x219мм
- Внутренние несущие стены - керамический поризованый блок 250x375x219мм
- Межкомнатные перегородки - керамический поризованый блок 120х500х219мм
- Армирование кладки через каждые три ряда
- Укладка между блоками стекловолоконной ткани каждый ряд
- Деревянные лаги из доски камерной сушки 50х200мм, с шагом 590мм
- Утепление базальтовым плитным утеплителем "Юматекс Термо Smart" в 200мм
- Стропила из доски 50х150/200мм (камерной сушки) с шагом не более 590мм
- Контр обрешётка из бруска 50х50мм (камерной сушки)
- Металлочерепица -"InterProfil"
- В стоимость не входит
- В стоимость не входит
- В стоимость не входит
- Высота ростверка 600мм, ширина под наружные стены 400мм, под внутренние 300мм
- Бетон сертифицированный марки М300 (заводской)
- Каркас из арматуры: продольная - Ø12мм с загибом по углам; поперечная - Ø8мм
- Песчаная подушка 400мм с трамбовкой
- Устройство геотекстиля
- Внешние стены - керамический поризованый блок 250x375x219мм
- Внутренние несущие стены - керамический поризованый блок 250x375x219мм
- Межкомнатные перегородки - керамический поризованый блок 120х500х219мм
- Армирование кладки через каждые три ряда
- Укладка между блоками стекловолоконной ткани каждый ряд
- Деревянные лаги из доски камерной сушки 50х200мм, с шагом 590мм
- Утепление базальтовым плитным утеплителем "Юматекс Термо Smart" в 200мм
- Стропила из доски 50х150/200мм (камерной сушки) с шагом не более 590мм
- Контр обрешётка из бруска 50х50мм (камерной сушки)
- Металлочерепица -"InterProfil"
- В стоимость не входит
- В стоимость не входит
- В стоимость не входит
Что еще входит в стоимость:
Отправьте свои контакты и мы расчитаем вам смету
Скорее всего вам подойдут следующие проекты домов:
Дом подходит для:
Дом подходит для:
Дом подходит для:












