Проект двухэтажного дома Паули Лофт 115
Дом подходит для:
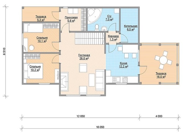
Площадь
115 м 2
Размер дома:
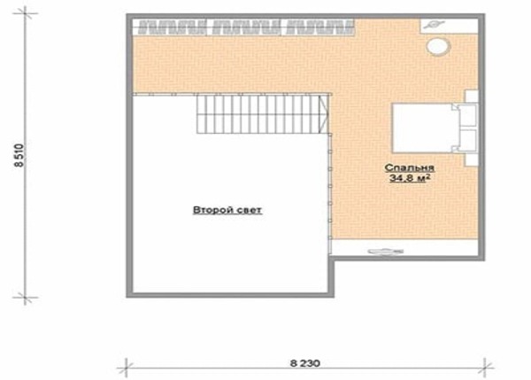
16х8,5
Этажей:
2
Спален:
3
Санузел:
1
Гараж:
Нет
Баня:
Нет
Терраса:
Нет
Панорамные окна:
Нет
Мастер-спальня:
Нет
Планировка
Характеристики
- Общая площадь: 115 м2
- Жилая площадь: 91 м2
- Количество этажей: 2
- Гараж: нет
- Площадь кровли: 119 м2
- Отделка: Без отделки
- Фундамент: Дома со свайным фундаментом
Материалы и перечень работ
- ЖБ сваи 3000*150*150 или монолитная плита в зависимости от параметров участка (финальное сечение и длина свай может быть скорректирована в зависимости от анализа грунта и перепада на участке Заказчика)
- Камерной сушки сечением 190мм*45мм (внешние стены) 90мм*45мм (внутренние не несущие перегородки), с шагом стоек по осям не более 635мм (расстояние между стойками 590мм)
- Стропильная система из строганой доски камерной сушки сечение 190мм*45мм или фермы на МЗП, технология MiTek в зависимости от параметров проекта
- Цокольное перекрытие из строганой доски камерной сушки сечением 190мм*45мм, обвязка свай составной балкой 190мм*135мм
- Обработка цокольного перекрытия антисептиком NEOMID
- Перекрытие по балкам из строганного пиломатериала камерной сушки сечением 190мм*45мм — обрешетка чернового пола из строганного пиломатериала камерной сушки сечением 90мм*45мм
- Металлическая черепица, сталь 0,5мм, оцинкованная, 20 лет, Satin, GRAND LINE
- Подкровельная вентиляция, брусок 45*45мм, обрешетка 90*20мм
- Диффузионная трехслойная мембрана Finka Strong 160, плотность 160 г/м, sd-0,02
- ПВХ водосточная система 125/90
- Полный комплект всех монтажных элементов кровли включая планки примыкания, капельники, конек, крепеж, гидроизоляция итд
- Размеры согласно спецификации, профиль REHAU Grazio 70мм, двухкамерный энергосберегающий стеклопакет (i стекло), фурнитура Roto, раскладка при наличии в проекте
- Металлические наличники
- Москитные сетки
- ПВХ-дверь на террасу REHAU Grazio 70мм
- Монтаж окон на анкеры в теплой зоне стены, с гидроизоляцией монтажного шва
- В стоимость не входит
- Вентилируемый окрашенный деревянный фасад
- Контробрешетка 45*45мм
- Скандинавская доска UYV 20*145*6000мм, АВ, Ель Поднятый ворс, 1Г (4ст) +2КР (3ст) укрывной окрас цвет RAL
- Подшив свесов крыши/карнизов деревом, устройство лобовой доски
- Отделка окон и дверей деревянными наличниками / финский наличник, окраска на производстве
- ЖБ сваи 3000*150*150 или монолитная плита в зависимости от параметров участка (финальное сечение и длина свай может быть скорректирована в зависимости от анализа грунта и перепада на участке Заказчика)
- Камерной сушки сечением 190мм*45мм (внешние стены) 90мм*45мм (внутренние не несущие перегородки), с шагом стоек по осям не более 635мм (расстояние между стойками 590мм)
- Стропильная система из строганой доски камерной сушки сечение 190мм*45мм или фермы на МЗП, технология MiTek в зависимости от параметров проекта
- Цокольное перекрытие из строганой доски камерной сушки сечением 190мм*45мм, обвязка свай составной балкой 190мм*135мм
- Обработка цокольного перекрытия антисептиком NEOMID
- Перекрытие по балкам из строганного пиломатериала камерной сушки сечением 190мм*45мм — обрешетка чернового пола из строганного пиломатериала камерной сушки сечением 90мм*45мм
- Металлическая черепица, сталь 0,5мм, оцинкованная, 20 лет, Satin, GRAND LINE
- Подкровельная вентиляция, брусок 45*45мм, обрешетка 90*20мм
- Диффузионная трехслойная мембрана Finka Strong 160, плотность 160 г/м, sd-0,02
- ПВХ водосточная система 125/90
- Полный комплект всех монтажных элементов кровли включая планки примыкания, капельники, конек, крепеж, гидроизоляция итд
- Размеры согласно спецификации, профиль REHAU Grazio 70мм, двухкамерный энергосберегающий стеклопакет (i стекло), фурнитура Roto, раскладка при наличии в проекте
- Металлические наличники
- Москитные сетки
- ПВХ-дверь на террасу REHAU Grazio 70мм
- Монтаж окон на анкеры в теплой зоне стены, с гидроизоляцией монтажного шва
- В стоимость не входит
- Вентилируемый окрашенный деревянный фасад
- Контробрешетка 45*45мм
- Скандинавская доска UYV 20*145*6000мм, АВ, Ель Поднятый ворс, 1Г (4ст) +2КР (3ст) укрывной окрас цвет RAL
- Подшив свесов крыши/карнизов деревом, устройство лобовой доски
- Отделка окон и дверей деревянными наличниками / финский наличник, окраска на производстве
Что еще входит в стоимость:
Отправьте свои контакты и мы расчитаем вам смету
Скорее всего вам подойдут следующие проекты домов:
Проект двухэтажного дома Коузи
Семья с одним ребенком
Дом подходит для:
Дом подходит для:
Проект двухэтажного дома Маркус
Семья с двумя детьми
Дом подходит для:
Дом подходит для:
Проект двухэтажного дома Джулиан
Семья с двумя детьми
Дом подходит для:
Дом подходит для:










