Проект одноэтажного дома Петровское
Дом подходит для:
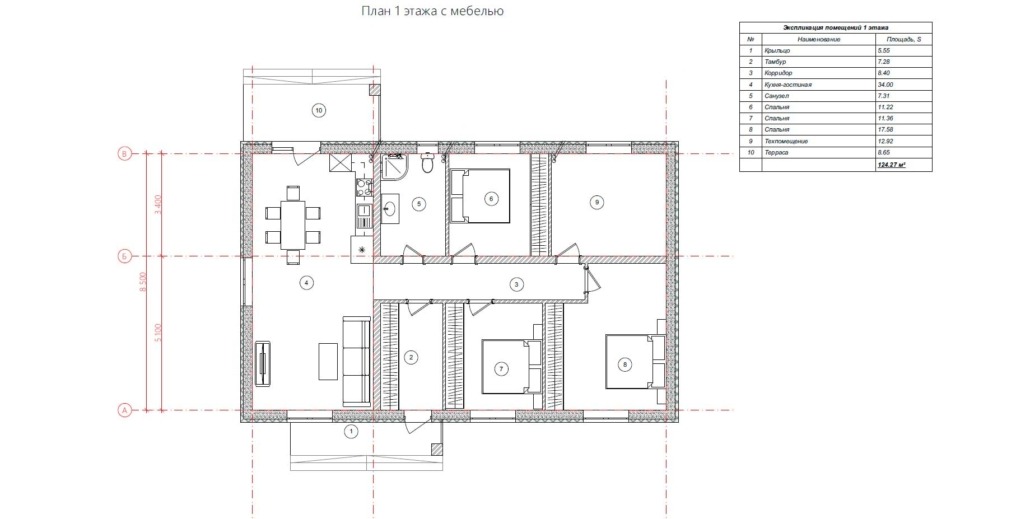
Площадь
124 м 2
Размер дома:
8,5х12
Этажей:
1
Спален:
3
Санузел:
1
Гараж:
Нет
Баня:
Нет
Терраса:
Нет
Панорамные окна:
Нет
Мастер-спальня:
Нет
Планировка
Фасады
О проекте
Комфортный дом площадью 124 м² с жилой площадью 109 м² идеален для семьи с двумя детьми. Газобетонные стены создают теплую и дышащую атмосферу, а металлочерепица добавляет долговечности. Интерьеры отличаются продуманной планировкой и гармоничным наполнением. Здесь все продумано для счастливой жизни.Характеристики
- Общая площадь: 124 м2
- Жилая площадь: 109 м2
- Количество этажей: 1
- Гараж: нет
- Площадь кровли: 129 м2
- Форма: Квадратные дома
- Тип кровли: Дома с двускатной крышей
- Отделка: С инженерными коммуникациями
- Фундамент: Дома с плитным фундаментом
Материалы и перечень работ
- Монолитная железобетонная плита 300мм (бетон М350, армирование. ø12мм, шаг 200 мм; песчаное основание 200мм; щебень 150мм; гидроизоляционная мембрана Planter
- Газобетонные блоки Bonolit D400 400мм (внешние несущие стены); 250мм (внутренние несущие стены); армирование двухрядное арматурой А500с ø8мм; тонкослойная кладка на клей
- Оконные и дверные перемычки из U-блоков с армированием и бетонированием; утепление 50мм
- Монолитное железобетонное перекрытие 180мм (бетон М350, армирование. ø12мм, шаг 200 мм, усилением по проекту); утепление по торцу; доборная кладка по торцу
- Монолитный железобетонный армопояс по несущим стенам (бетон М350, армирование. Ø8-10мм); утепление по торцу; доборная кладка по торцу
- Стропильная система (стропила сечением 200х50мм); контробрешетка 50х50мм, обрешетка 100х25мм, затяжка 150х50мм, стойка 100х100мм. Гидроизоляционная мембрана. Обработка пиломатериала огне-биозащитой.
- Металлочерепица Grand Line 0.5мм
- В стоимость не входит
- Ввод всех коммуникаций: канализационные стояки (канализационная труба 110мм с утеплением); водоснабжение (ПНД труба 32мм с утеплением); закладная под электроснабжением (ПНД труба 50мм)
- В стоимость не входит
- Монолитная железобетонная плита 300мм (бетон М350, армирование. ø12мм, шаг 200 мм; песчаное основание 200мм; щебень 150мм; гидроизоляционная мембрана Planter
- Газобетонные блоки Bonolit D400 400мм (внешние несущие стены); 250мм (внутренние несущие стены); армирование двухрядное арматурой А500с ø8мм; тонкослойная кладка на клей
- Оконные и дверные перемычки из U-блоков с армированием и бетонированием; утепление 50мм
- Монолитное железобетонное перекрытие 180мм (бетон М350, армирование. ø12мм, шаг 200 мм, усилением по проекту); утепление по торцу; доборная кладка по торцу
- Монолитный железобетонный армопояс по несущим стенам (бетон М350, армирование. Ø8-10мм); утепление по торцу; доборная кладка по торцу
- Стропильная система (стропила сечением 200х50мм); контробрешетка 50х50мм, обрешетка 100х25мм, затяжка 150х50мм, стойка 100х100мм. Гидроизоляционная мембрана. Обработка пиломатериала огне-биозащитой.
- Металлочерепица Grand Line 0.5мм
- В стоимость не входит
- Ввод всех коммуникаций: канализационные стояки (канализационная труба 110мм с утеплением); водоснабжение (ПНД труба 32мм с утеплением); закладная под электроснабжением (ПНД труба 50мм)
- В стоимость не входит
Что еще входит в стоимость:
Отправьте свои контакты и мы расчитаем вам смету
Скорее всего вам подойдут следующие проекты домов:
Проект одноэтажного дома Дом id-115224
Семья с одним ребенком
Дом подходит для:
Дом подходит для:
Проект одноэтажного дома Дом id-115261
Семья с двумя детьми
Дом подходит для:
Дом подходит для:
Проект одноэтажного дома Дом id-112368
Семья с одним ребенком
Дом подходит для:
Дом подходит для:

























