Проект двухэтажного дома Писково
Площадь
188 м 2
Размер дома:
7x12
Этажей:
2
Спален:
4
Санузел:
0
Гараж:
Нет
Баня:
Нет
Терраса:
Нет
Панорамные окна:
Нет
Мастер-спальня:
Нет
О проекте
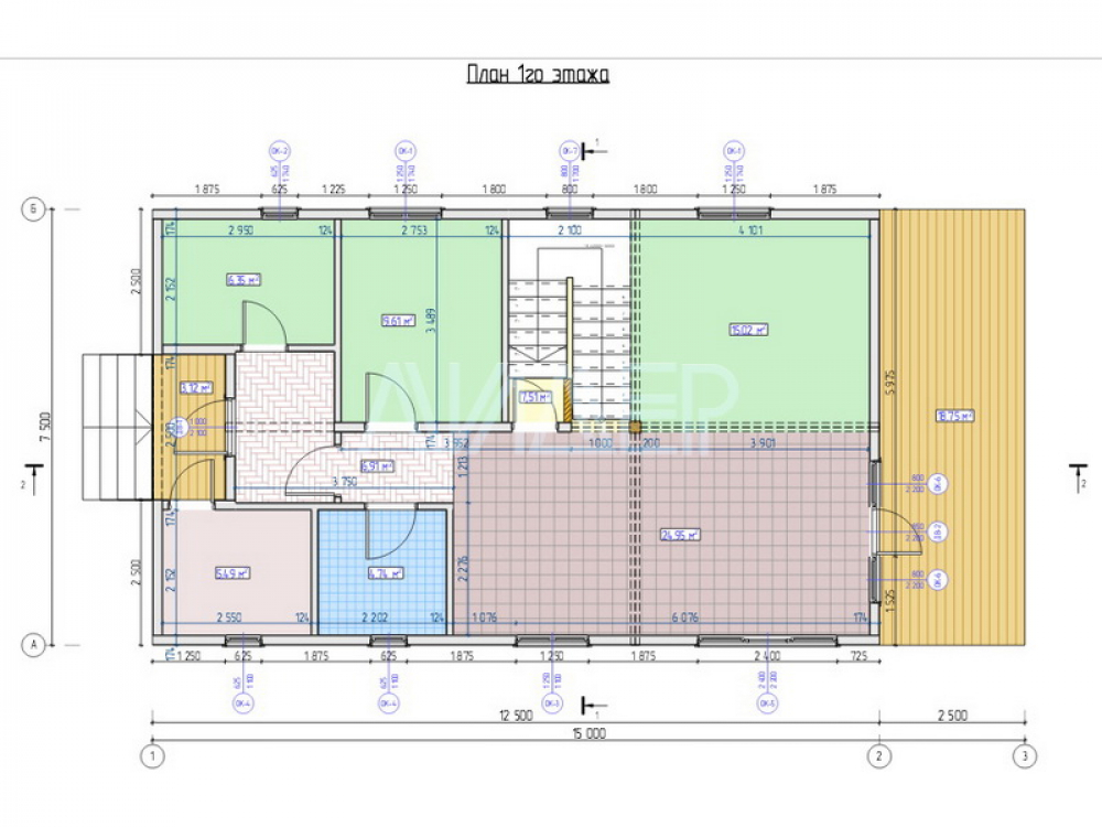
Здесь даже плед на диване кажется особенно мягким. 188 м² — идеальны для воплощения идеи «всё под рукой». Дом спроектирован в духе дома в классическом стиле. Конструкция из Каркас обеспечивает прочность и долговечность. Двухэтажная рациональная планировка разграничивает спальные и дневные помещения.Характеристики
- Общая площадь: 188 м2
- Количество этажей: 2
- Стиль, разновидность: Дома в ином стиле
- Форма: Прямоугольные дома
- Тип кровли: Дома с двускатной крышей
- Отделка: Без отделки
- Размер: 7x12
Отправьте свои контакты и мы расчитаем вам смету
Скорее всего вам подойдут следующие проекты домов:
Дом подходит для:
Дом подходит для:
Проект двухэтажного дома Дом из СИП-панелей ЛЕГЕНДА 154 м.кв.
Семья с двумя детьми
Дом подходит для:
Дом подходит для:












