Проект двухэтажного дома Проект 15-23
Площадь
230 м 2
Размер дома:
10x12
Этажей:
2
Спален:
4
Санузел:
0
Гараж:
Нет
Баня:
Нет
Терраса:
Нет
Панорамные окна:
Нет
Мастер-спальня:
Нет
О проекте
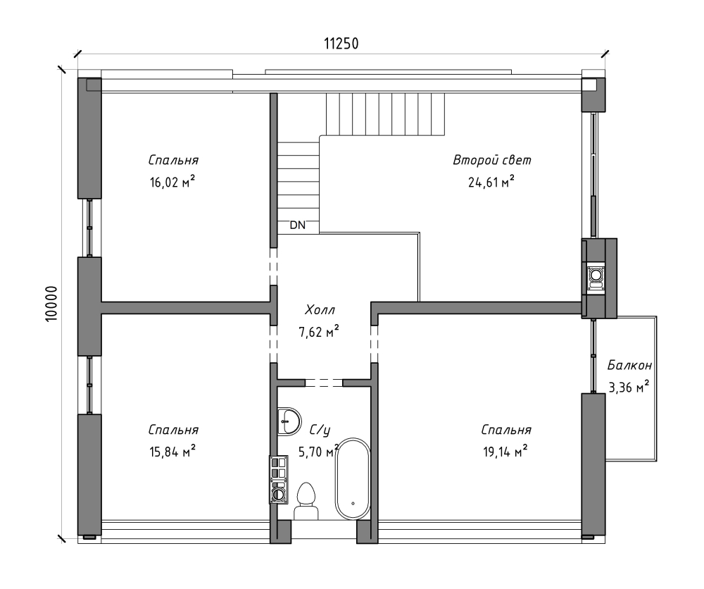
Изысканность и практичность нашли свое отражение в проекте площадью 230 метров, возведённом из надежного газобетона. Пространство наполнено светом и создает ощущение внутренней свободы. Материал стен гарантирует легкость и долговечность эксплуатации дома. Внутренняя планировка гармонично объединяет приватные и общественные зоны. Каждый день в таком доме наполнен теплом и доверием.Характеристики
- Общая площадь: 230 м2
- Количество этажей: 2
- Стиль, разновидность: Дома в ином стиле
- Форма: Квадратные дома
- Тип кровли: Дома с двускатной крышей
- Отделка: Без отделки
- Размер: 10x12
Отправьте свои контакты и мы расчитаем вам смету
Скорее всего вам подойдут следующие проекты домов:
Проект двухэтажного дома Дом id-78199
Для большой семьи
Дом подходит для:
Дом подходит для:
Проект двухэтажного дома Дом id-77550
Для большой семьи
Дом подходит для:
Дом подходит для:
Проект двухэтажного дома Дом id-59065
Для большой семьи
Дом подходит для:
Дом подходит для:






















