Проект двухэтажного дома Проект 20-24
Площадь
240 м 2
Размер дома:
12x12
Этажей:
2
Спален:
3
Санузел:
0
Гараж:
Нет
Баня:
Нет
Терраса:
Нет
Панорамные окна:
Нет
Мастер-спальня:
Нет
О проекте
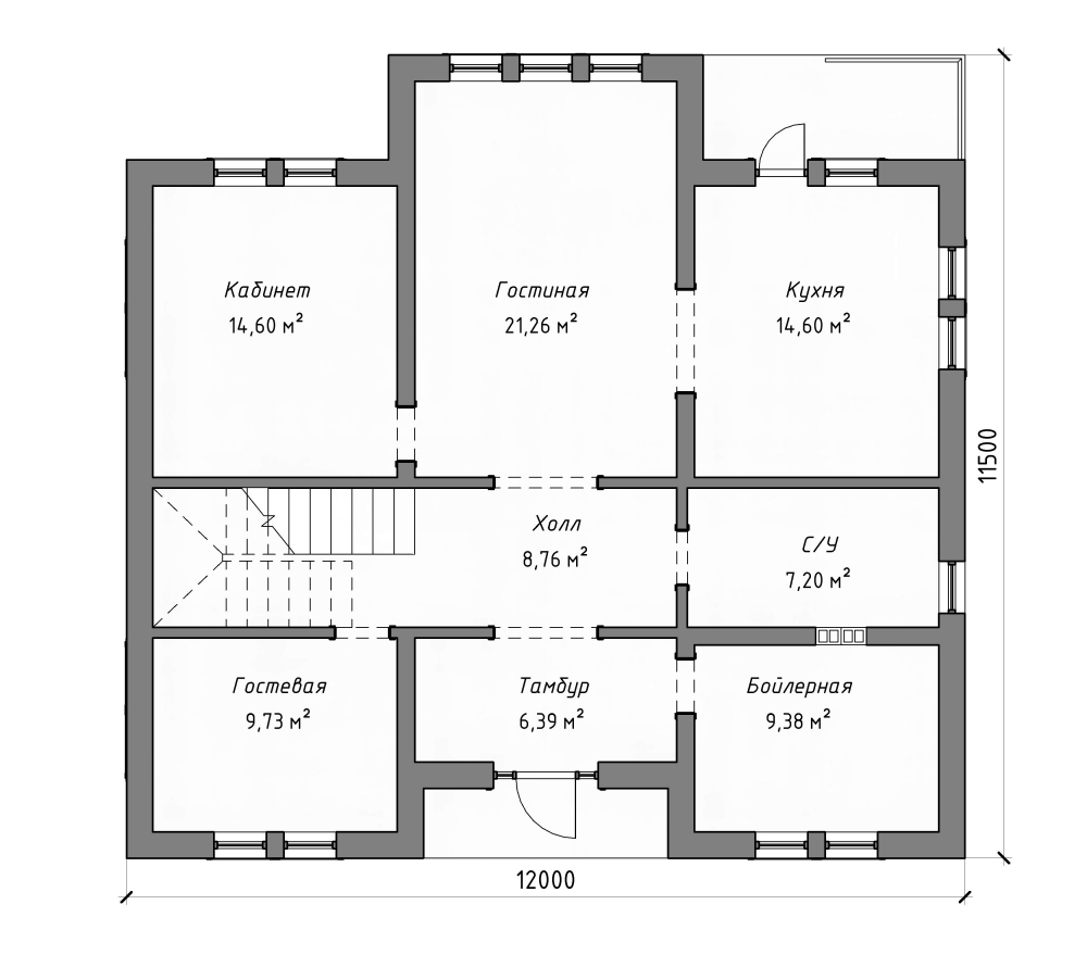
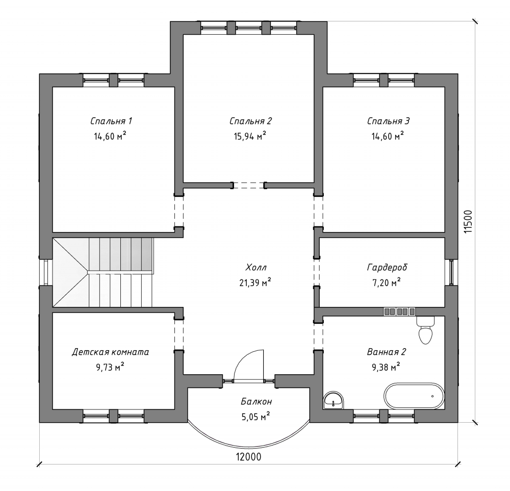
Просторный двухэтажный дом площадью 240 м² из газобетона — это гармония масштаба и уюта. Три спальни и продуманная планировка создают комфортные условия. Качественные материалы гарантируют долговечность. Проект идеален для тех, кто ценит простор. Отличный вариант для семьи.Характеристики
- Общая площадь: 240 м2
- Количество этажей: 2
- Стиль, разновидность: Дома в ином стиле
- Форма: Квадратные дома
- Тип кровли: Дома с четырехскатной крышей (вальмовой)
- Отделка: Без отделки
- Размер: 12x12
Отправьте свои контакты и мы расчитаем вам смету
Скорее всего вам подойдут следующие проекты домов:
Проект двухэтажного дома Дом id-78199
Для большой семьи
Дом подходит для:
Дом подходит для:
Проект двухэтажного дома Дом id-77550
Для большой семьи
Дом подходит для:
Дом подходит для:
Проект двухэтажного дома Дом id-59065
Для большой семьи
Дом подходит для:
Дом подходит для:






















