Ваш город:

Проект двухэтажного дома Проект 21

Площадь: 125 м2
Размер:
Дом подходит для:
Семья с двумя детьми
Этажей:
2
Стены:
Кровля:
Металлочерепица
Цена:
Оставить заявку
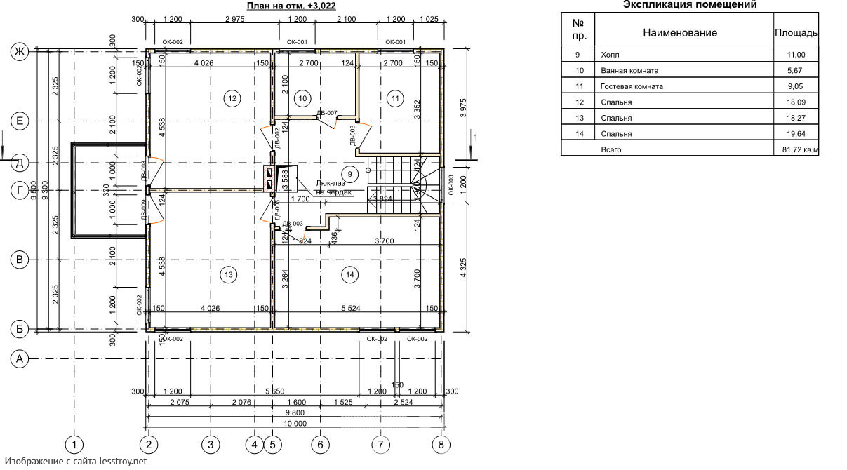
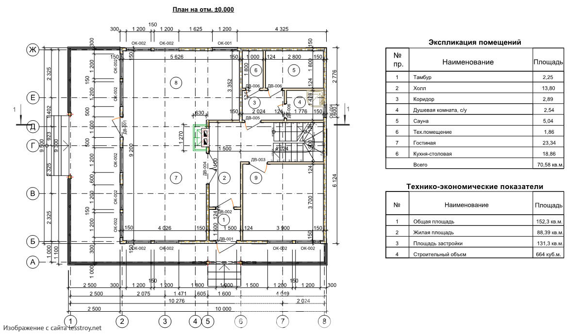
Площадь
125 м 2
Размер дома:
Этажей:
2
Спален:
3
Санузел:
0
Гараж:
Нет
Баня:
Нет
Терраса:
Нет
Панорамные окна:
Нет
Мастер-спальня:
Нет
О проекте
Современный двухэтажный дом площадью 125 м² из SIP-панелей с оригинальной кровельной конструкцией. Три стильные спальни с панорамным остеклением и open-space гостиная отвечают самым взыскательным требованиям к комфорту.

Характеристики
  • Общая площадь: 125 м2
  • Количество этажей: 2
  • Стиль, разновидность: Дома в ином стиле
  • Форма: Прямоугольные дома
  • Тип кровли: Дома с иной крышей
  • Отделка: Без отделки
Отправьте свои контакты и мы расчитаем вам смету
Прикрепить документ
Скорее всего вам подойдут следующие проекты домов:
Добавить к сравнению
Добавить в избранное
Изображение
Изображение
Изображение
Дом подходит для:
Семья с двумя детьми
Добавить к сравнению
Добавить в избранное
Изображение
Изображение
Изображение
Изображение
Изображение
Проект двухэтажного дома SIP 11
Площадь: 126 м2
Размер:
Дом подходит для:
Семья с двумя детьми
Дом подходит для:
Семья с двумя детьми
Добавить к сравнению
Добавить в избранное
Изображение
Изображение
Изображение
Проект двухэтажного дома Конта
Площадь: 130 м2
Размер: 9x10
Дом подходит для:
Семья с двумя детьми
Дом подходит для:
Семья с двумя детьми