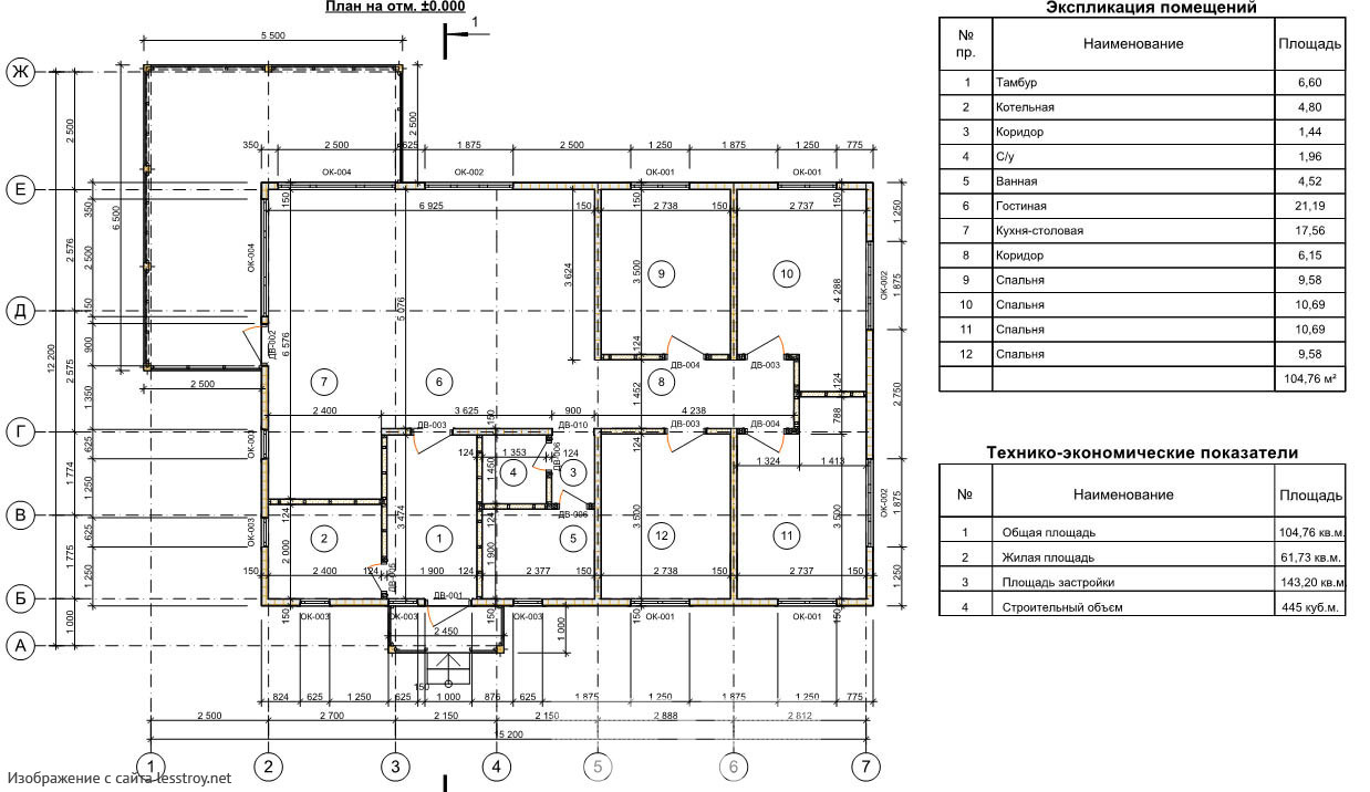
Проект одноэтажного дома Проект №25
Площадь
136 м 2
Размер дома:
12x15
Этажей:
1
Спален:
4
Санузел:
0
Гараж:
Нет
Баня:
Нет
Терраса:
Нет
Панорамные окна:
Нет
Мастер-спальня:
Нет
О проекте
Одноэтажный дом из SIP-панелей площадью 136 м² с четырьмя спальнями и мансардной крышей. Металлочерепица и лаконичный стиль подчеркивают его функциональность. Идеальный выбор для большой семьи.Характеристики
- Общая площадь: 136 м2
- Количество этажей: 1
- Стиль, разновидность: Дома в ином стиле
- Форма: Прямоугольные дома
- Тип кровли: Дома с мансардной крышей
- Отделка: Без отделки
- Размер: 12x15
Отправьте свои контакты и мы расчитаем вам смету
Скорее всего вам подойдут следующие проекты домов:
Дом подходит для:
Дом подходит для:
Дом подходит для:














