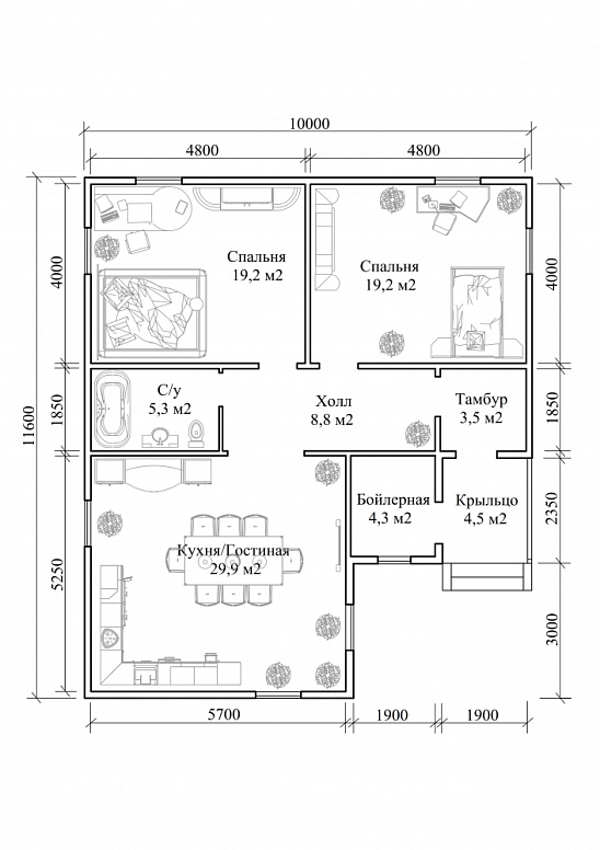
Проект одноэтажного дома Проект Дома Тренто
Площадь
120 м 2
Размер дома:
8x11
Этажей:
1
Спален:
2
Санузел:
0
Гараж:
Нет
Баня:
Нет
Терраса:
Нет
Панорамные окна:
Нет
Мастер-спальня:
Нет
О проекте
Проект создает визуальную гармонию, где каждая линия ведет к семейному счастью. В этом доме — 215 м² по-настоящему полезной площади. Стены из бруса хорошо держат тепло и защищают от шума. Архитектура выполнена в стиле дома в классическом стиле. Проект включает 3 спальни — удобно для семьи.Характеристики
- Общая площадь: 120 м2
- Количество этажей: 1
- Стиль, разновидность: Дома в стиле Хай тек
- Форма: Прямоугольные дома
- Тип кровли: Дома с двускатной крышей
- Отделка: Без отделки
- Размер: 8x11
Отправьте свои контакты и мы расчитаем вам смету
Скорее всего вам подойдут следующие проекты домов:
Дом подходит для:
Дом подходит для:
Дом подходит для:








