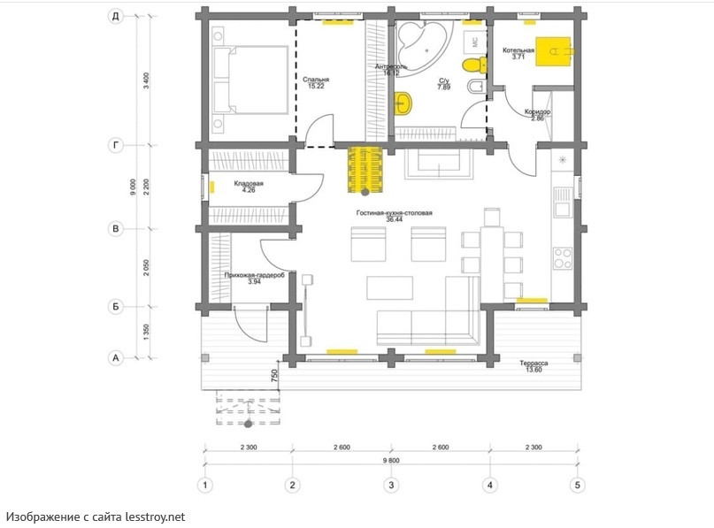
Проект одноэтажного дома Проект ДБ-11
Площадь
104 м 2
Размер дома:
Этажей:
1
Спален:
1
Санузел:
0
Гараж:
Нет
Баня:
Нет
Терраса:
Нет
Панорамные окна:
Нет
Мастер-спальня:
Нет
О проекте
Проект создает гармоничную среду, где приятно проводить время.Дом с 104 м² — отличное начало для загородной жизни. Архитектура выполнена в стиле дома в классическом стиле. Двухэтажная просторная планировка создаёт идеальные условия для жизни всей семьи. профнастил придаёт дому выразительность и надёжность.Характеристики
- Общая площадь: 104 м2
- Количество этажей: 1
- Стиль, разновидность: Дома в стиле Русский
- Форма: Прямоугольные дома
- Тип кровли: Дома с двускатной крышей
- Отделка: Без отделки
Отправьте свои контакты и мы расчитаем вам смету
Скорее всего вам подойдут следующие проекты домов:
Дом подходит для:
Дом подходит для:
Дом подходит для:









