Проект двухэтажного дома ПРОЕКТ «ДЭСМАН». ДОМ 110 КВ.М
Площадь
110 м 2
Размер дома:
Этажей:
2
Спален:
3
Санузел:
0
Гараж:
Нет
Баня:
Нет
Терраса:
Нет
Панорамные окна:
Нет
Мастер-спальня:
Нет
О проекте
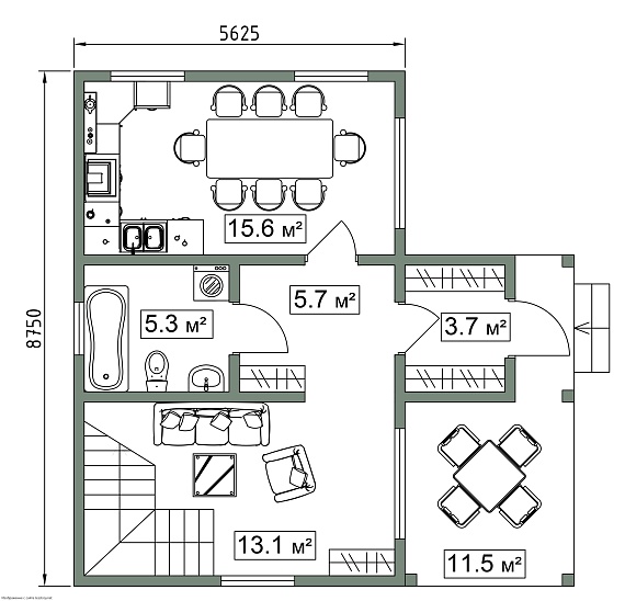
Двухэтажный дом площадью 110 м² из SIP-панелей в стиле хай-тек. Композитная черепица и 3 спальни подчеркивают современность. Коническая крыша добавляет уникальности. Идеален для любителей инновационных решений.Характеристики
- Общая площадь: 110 м2
- Количество этажей: 2
- Стиль, разновидность: Дома в стиле Хай тек
- Форма: Прямоугольные дома
- Тип кровли: Дома с конической крышей
- Отделка: Без отделки
Отправьте свои контакты и мы расчитаем вам смету
Скорее всего вам подойдут следующие проекты домов:
Дом подходит для:
Дом подходит для:
Проект двухэтажного дома Каркасный дом 8х8 (8 на 8), проект двух этажного дома
Семья с одним ребенком
Дом подходит для:
Дом подходит для:











