Проект двухэтажного дома 15-153А
Дом подходит для:
Площадь
153 м 2
Размер дома:
9x9
Этажей:
2
Спален:
4
Санузел:
2
Гараж:
Нет
Баня:
Нет
Терраса:
Нет
Панорамные окна:
Нет
Мастер-спальня:
Нет
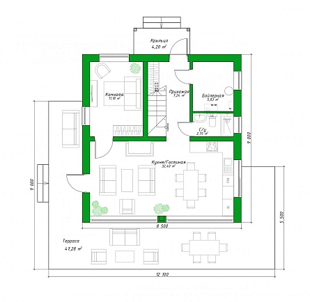
Планировка
Фасады
О проекте
Дом из газобетона площадью 153 м² с жилыми 115 м², где простор и уют идут рука об руку. Светлые комнаты с продуманной планировкой создают ощущение простора, а натуральные материалы дарят тепло и спокойствие. Цементно-песчаная черепица дополняет лаконичный фасад, а удобные решения делают жизнь здесь комфортной. Идеальный вариант для семьи с двумя детьми.Характеристики
- Общая площадь: 153 м2
- Жилая площадь: 115 м2
- Количество этажей: 2
- Размер: 9x9
- Фундамент: Дома с УРФ
Материалы и перечень работ
- Железобетонная монолитная плита 300 мм с арматурой ᴓ12 мм
- Прокладка закладных (вода, канализация, электричество)
- Укладка: геотекстиль, гидроизоляция, утеплитель
- Засыпка песком с послойным трамбованием
- Монтаж/демонтаж опалубки, армирование Бетонирование (заливка, вибрирование, уход)
- Гидроизоляция отсечная Кладка несущих стен с резкой блока Кладка перегородок с резкой блока
- Армирование стен (по проекту)
- Стропольные работы
- Устройство опалубки, армирование, бетонирование (ж/б конструкции)
- Наружные стены и несущие перегородки: Газобетонный блок 400 мм
- Устройство лагового перекрытия, мауэрлата, отсечной гидроизоляции Утепление перекрытия Монтаж пароизоляционной пленки с проклейкой стыков Обработка древесины защитным составом
- Монтаж контр обрешетки Монтаж шаговой обрешетки
- Монтаж гидроизоляционной плёнки Монтаж черепицы с подрезкой материала
- Обустройство конька Обустройство хребта Обустройство карнизного свеса (капельник, сетка, реснички)
- Монтаж ЭПП (утепление поясов и мауэрлата)
- Рассчитываются отдельно в зависимости от цвета, типа открывания, размера окон.
- Рассчитываются отдельно в зависимости от цвета, типа открывания, размера окон.
- Рассчитываются отдельно в зависимости от цвета, типа открывания, размера окон.
- Рассчитываются отдельно в зависимости от цвета, типа открывания, размера окон.
- Рассчитываются отдельно в зависимости от цвета, типа открывания, размера окон.
- Рассчитываются отдельно. Разведение инженерных коммуникаций в базовую комплектацию не входит
- Рассчитываются отдельно. Разведение инженерных коммуникаций в базовую комплектацию не входит
- Рассчитываются отдельно. Разведение инженерных коммуникаций в базовую комплектацию не входит
- Рассчитываются отдельно. Разведение инженерных коммуникаций в базовую комплектацию не входит
- Рассчитываются отдельно. Разведение инженерных коммуникаций в базовую комплектацию не входит
- Рассчитываются отдельно
- Рассчитываются отдельно
- Рассчитываются отдельно
- Рассчитываются отдельно
- Рассчитываются отдельно
- Железобетонная монолитная плита 300 мм с арматурой ᴓ12 мм
- Прокладка закладных (вода, канализация, электричество)
- Укладка: геотекстиль, гидроизоляция, утеплитель
- Засыпка песком с послойным трамбованием
- Монтаж/демонтаж опалубки, армирование Бетонирование (заливка, вибрирование, уход)
- Гидроизоляция отсечная Кладка несущих стен с резкой блока Кладка перегородок с резкой блока
- Армирование стен (по проекту)
- Стропольные работы
- Устройство опалубки, армирование, бетонирование (ж/б конструкции)
- Наружные стены и несущие перегородки: Газобетонный блок 400 мм
- Устройство лагового перекрытия, мауэрлата, отсечной гидроизоляции Утепление перекрытия Монтаж пароизоляционной пленки с проклейкой стыков Обработка древесины защитным составом
- Монтаж контр обрешетки Монтаж шаговой обрешетки
- Монтаж гидроизоляционной плёнки Монтаж черепицы с подрезкой материала
- Обустройство конька Обустройство хребта Обустройство карнизного свеса (капельник, сетка, реснички)
- Монтаж ЭПП (утепление поясов и мауэрлата)
- Рассчитываются отдельно в зависимости от цвета, типа открывания, размера окон.
- Рассчитываются отдельно в зависимости от цвета, типа открывания, размера окон.
- Рассчитываются отдельно в зависимости от цвета, типа открывания, размера окон.
- Рассчитываются отдельно в зависимости от цвета, типа открывания, размера окон.
- Рассчитываются отдельно в зависимости от цвета, типа открывания, размера окон.
- Рассчитываются отдельно. Разведение инженерных коммуникаций в базовую комплектацию не входит
- Рассчитываются отдельно. Разведение инженерных коммуникаций в базовую комплектацию не входит
- Рассчитываются отдельно. Разведение инженерных коммуникаций в базовую комплектацию не входит
- Рассчитываются отдельно. Разведение инженерных коммуникаций в базовую комплектацию не входит
- Рассчитываются отдельно. Разведение инженерных коммуникаций в базовую комплектацию не входит
- Рассчитываются отдельно
- Рассчитываются отдельно
- Рассчитываются отдельно
- Рассчитываются отдельно
- Рассчитываются отдельно
Что еще входит в стоимость:
Отправьте свои контакты и мы расчитаем вам смету
Скорее всего вам подойдут следующие проекты домов:
Проект двухэтажного дома Дом id-114826
Для большой семьи
Дом подходит для:
Дом подходит для:
Проект двухэтажного дома Дом id-119594
Семья с двумя детьми
Дом подходит для:
Дом подходит для:
Проект двухэтажного дома Дом id-114662
Семья с двумя детьми
Дом подходит для:
Дом подходит для:





















