Проект двухэтажного дома Проект дома АС-105
Площадь
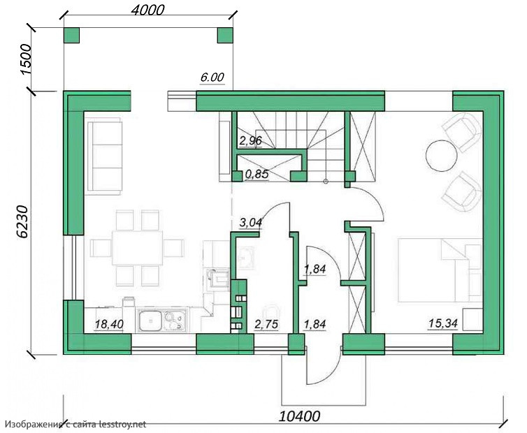
110 м 2
Размер дома:
Этажей:
2
Спален:
3
Санузел:
0
Гараж:
Нет
Баня:
Нет
Терраса:
Нет
Панорамные окна:
Нет
Мастер-спальня:
Нет
О проекте
Пространство, в котором всё продумано до мелочей: стильный интерьер, уютная атмосфера и гармония для вашего идеального быта. 191 м² — когда каждый угол важен. Наличие 3 спальни удовлетворит запросы семьи с детьми. Дом спроектирован в духе дома в классическом стиле. Крыша из металлочерепица подчёркивает современный облик дома.Характеристики
- Общая площадь: 110 м2
- Количество этажей: 2
- Стиль, разновидность: Дома в ином стиле
- Форма: Прямоугольные дома
- Тип кровли: Дома с многощипцовой крышей
- Отделка: Без отделки
Отправьте свои контакты и мы расчитаем вам смету
Скорее всего вам подойдут следующие проекты домов:
Дом подходит для:
Дом подходит для:
Дом подходит для:











