Ваш город:

Проект одноэтажного дома проект дома Женева 157 м с сауной

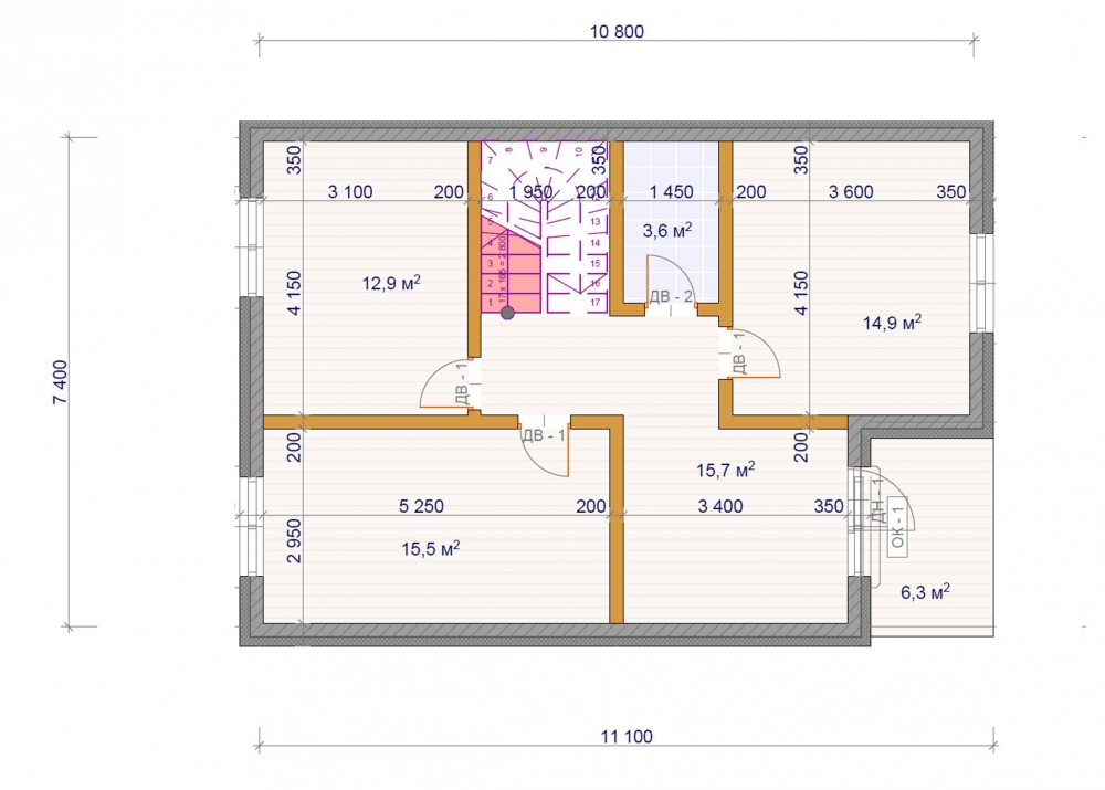
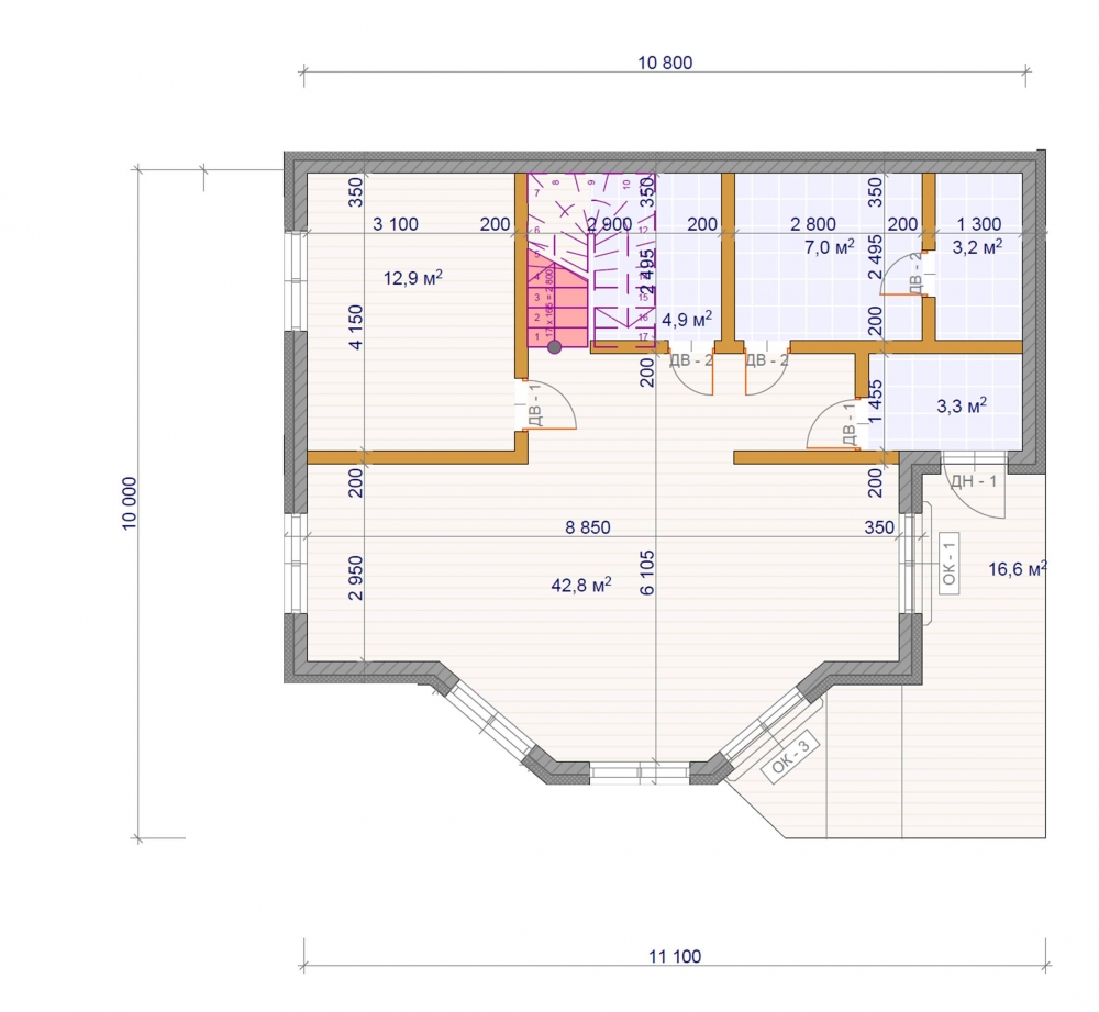
Площадь: 167 м2
Размер: 10x11
Дом подходит для:
Семья с одним ребенком
Этажей:
1
Стены:
Кровля:
Черепица
Цена:
Оставить заявку
Площадь
167 м 2
Размер дома:
10x11
Этажей:
1
Спален:
0
Санузел:
0
Гараж:
Нет
Баня:
Нет
Терраса:
Нет
Панорамные окна:
Нет
Мастер-спальня:
Нет
О проекте
Пространство, где можно чувствовать себя как в раю. С такими габаритами — 167 м² — дом будет уютным, но не тесным. Архитектура выполнена в стиле дома в классическом стиле. Одноэтажная удобная планировка обеспечивает практичное распределение комнат. Конструкция из пенобетона обеспечивает прочность и долговечность.

Характеристики
  • Общая площадь: 167 м2
  • Количество этажей: 1
  • Стиль, разновидность: Дома в ином стиле
  • Тип кровли: Дома с иной крышей
  • Отделка: Без отделки
  • Размер: 10x11
Отправьте свои контакты и мы расчитаем вам смету
Прикрепить документ
Скорее всего вам подойдут следующие проекты домов: