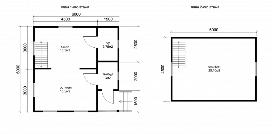
Проект двухэтажного дома Проект каркасного дома 7,0 х 9,0 м «Песочное»
Площадь
78 м 2
Размер дома:
7x9
Этажей:
2
Спален:
2
Санузел:
0
Гараж:
Нет
Баня:
Нет
Терраса:
Нет
Панорамные окна:
Нет
Мастер-спальня:
Нет
О проекте
Пространство, организованное для удобства всех членов семьи. Планировка построена вокруг 78 м² простора и логики. Дом спроектирован в духе дома в классическом стиле. Каркас делает дом надёжным при любой погоде. Двухэтажная удобная планировка разделяет приватные и общественные зоны.Характеристики
- Общая площадь: 78 м2
- Количество этажей: 2
- Стиль, разновидность: Дома в ином стиле
- Форма: Прямоугольные дома
- Тип кровли: Дома с двускатной крышей
- Отделка: Без отделки
- Размер: 7x9













