Проект двухэтажного дома Проект с-3
Площадь
180 м 2
Размер дома:
Этажей:
2
Спален:
4
Санузел:
0
Гараж:
Нет
Баня:
Нет
Терраса:
Нет
Панорамные окна:
Нет
Мастер-спальня:
Нет
О проекте
Проект предлагает идеальный баланс между визуальной привлекательностью и удобством.Благодаря 216 м² можно реализовать все бытовые задачи с комфортом. Материал кровли — профнастил, что добавляет зданию индивидуальность. Двухэтажная просторная планировка обеспечивает комфортную навигацию внутри дома. Проект включает 4 спальни — удобно для семьи.Характеристики
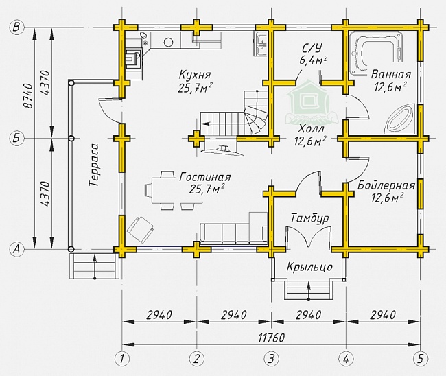
- Общая площадь: 180 м2
- Количество этажей: 2
- Стиль, разновидность: Дома в стиле Русский
- Форма: Прямоугольные дома
- Тип кровли: Дома с двускатной крышей
- Отделка: Без отделки
Отправьте свои контакты и мы расчитаем вам смету
Скорее всего вам подойдут следующие проекты домов:
Дом подходит для:
Дом подходит для:
Проект двухэтажного дома Дом из оцилиндрованного бревна 8.7х11.7
Семья с одним ребенком
Дом подходит для:
Дом подходит для:












