Ваш город:

Проект двухэтажного дома Проект сруб дома СРД-7

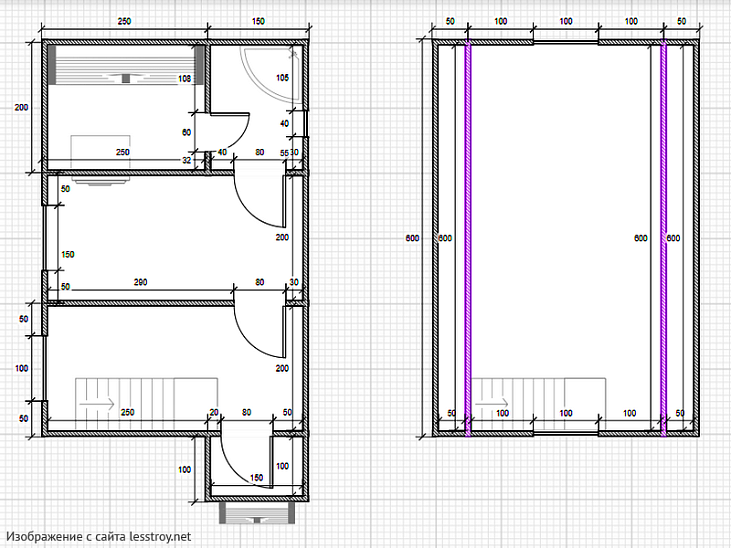
Площадь: 48 м2
Размер: 6x8
Дом подходит для:
Семья с одним ребенком
Этажей:
2
Стены:
Кровля:
Рубероид
Цена:
Оставить заявку
Площадь
48 м 2
Размер дома:
6x8
Этажей:
2
Спален:
2
Санузел:
0
Гараж:
Нет
Баня:
Нет
Терраса:
Нет
Панорамные окна:
Нет
Мастер-спальня:
Нет
О проекте
Миниатюрный, но аутентичный сруб из рубленного бревна. Две компактные спальни оптимально используют имеющуюся площадь. Рубероидная кровля сохраняет традиционный облик постройки. Идеальный вариант для охотничьего домика или дачного отдыха.

Характеристики
  • Общая площадь: 48 м2
  • Количество этажей: 2
  • Стиль, разновидность: Дома в стиле Минимализм
  • Форма: Прямоугольные дома
  • Тип кровли: Дома с двускатной крышей
  • Отделка: Без отделки
  • Размер: 6x8
Отправьте свои контакты и мы расчитаем вам смету
Прикрепить документ
Скорее всего вам подойдут следующие проекты домов:
Добавить к сравнению
Добавить в избранное
Изображение
Изображение
Изображение
Изображение
Изображение
Проект двухэтажного дома Баня из сруба
Площадь: 56 м2
Размер: 4x6
Дом подходит для:
Семья с одним ребенком
Дом подходит для:
Семья с одним ребенком