Проект двухэтажного дома RDM-77
Дом подходит для:
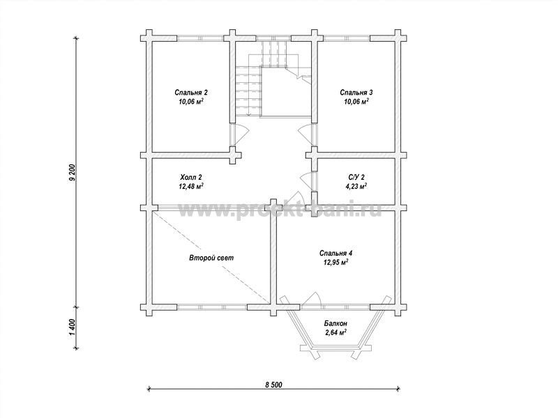
Площадь
143 м 2
Размер дома:
10,6х8,5
Этажей:
2
Спален:
4
Санузел:
2
Гараж:
Нет
Баня:
Нет
Терраса:
Нет
Панорамные окна:
Нет
Мастер-спальня:
Нет
Планировка
Фасады
О проекте
Просторный дом площадью 143 м² с жилой зоной 104 м² идеально подходит для большой семьи. Брусчатые стены обеспечивают натуральность и тепло, а светлые интерьеры наполнены уютом. Продуманная планировка делает пространство функциональным и удобным. Здесь царит гармония между традициями и современным комфортом.Характеристики
- Общая площадь: 143 м2
- Жилая площадь: 104 м2
- Количество этажей: 2
- Гараж: нет
- Площадь кровли: 148 м2
- Отделка: Без отделки
- Фундамент: Дома со свайным фундаментом
Материалы и перечень работ
- Свая металлическая d=108мм, L=2500мм с антикоррозийным покрытием;
- Оголовок d=108мм 150x150мм;
- Швеллер 160мм под печь;
- Цемент, песок;
- Монтаж
- Внешние и внутренние стены из клеёного бруса;
- Перегородки и фронтоны из клеёного бруса;
- Внешние и внутренние стены из клеёного бруса;
- Перегородки и фронтоны из клеёного бруса;
- Балки под пол и потолок из бруса 100мм на 200мм;
- Чистовая стропильная система 50х200мм;
- Обрешетка 25х150мм;
- Прижимной брусок 25х40мм;
- Рубероид РКП-350;
- Крепеж, расходники;
- В стоимость не входят
- В стоимость не входит
- В стоимость не входит
- Свая металлическая d=108мм, L=2500мм с антикоррозийным покрытием;
- Оголовок d=108мм 150x150мм;
- Швеллер 160мм под печь;
- Цемент, песок;
- Монтаж
- Внешние и внутренние стены из клеёного бруса;
- Перегородки и фронтоны из клеёного бруса;
- Внешние и внутренние стены из клеёного бруса;
- Перегородки и фронтоны из клеёного бруса;
- Балки под пол и потолок из бруса 100мм на 200мм;
- Чистовая стропильная система 50х200мм;
- Обрешетка 25х150мм;
- Прижимной брусок 25х40мм;
- Рубероид РКП-350;
- Крепеж, расходники;
- В стоимость не входят
- В стоимость не входит
- В стоимость не входит
Что еще входит в стоимость:
Отправьте свои контакты и мы расчитаем вам смету
Скорее всего вам подойдут следующие проекты домов:
Дом подходит для:
Дом подходит для:
Дом подходит для:













