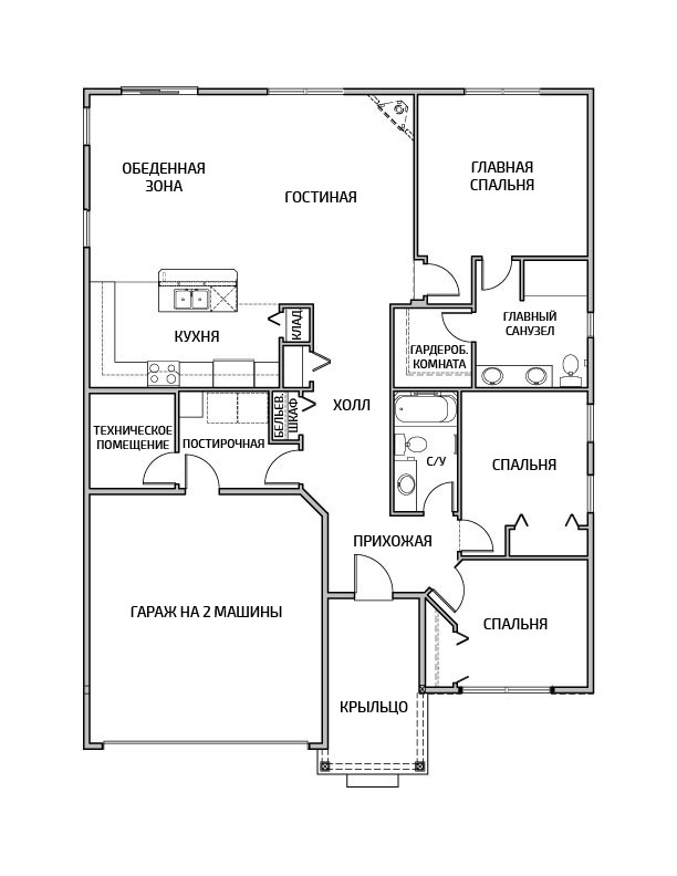
Проект одноэтажного дома Рейнджер
Площадь
164 м 2
Размер дома:
Этажей:
1
Спален:
3
Санузел:
0
Гараж:
Нет
Баня:
Нет
Терраса:
Нет
Панорамные окна:
Нет
Мастер-спальня:
Нет
О проекте
Пространство, где время течёт медленнее и приятнее. Жизнь комфортна, когда есть свои 164 м². Одноэтажная рациональная планировка разграничивает спальные и дневные помещения. Проект включает 3 спальни — удобно для семьи. Архитектура выполнена в стиле дома в стиле модерн.Характеристики
- Общая площадь: 164 м2
- Количество этажей: 1
- Стиль, разновидность: Дома в стиле Модерн
- Форма: Прямоугольные дома
- Тип кровли: Дома с двускатной крышей
- Отделка: Без отделки
Отправьте свои контакты и мы расчитаем вам смету
Скорее всего вам подойдут следующие проекты домов:
Дом подходит для:
Дом подходит для:
Дом подходит для:













