Проект двухэтажного дома S-158
Дом подходит для:
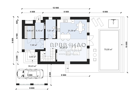
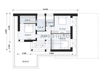
Площадь
158 м 2
Размер дома:
12,9х10,6
Этажей:
2
Спален:
4
Санузел:
3
Гараж:
Нет
Баня:
Нет
Терраса:
Нет
Панорамные окна:
Нет
Мастер-спальня:
Нет
Планировка
Характеристики
- Общая площадь: 158 м2
- Жилая площадь: 111.4 м2
- Количество этажей: 2
- Гараж: нет
- Высота дома: 8.1 м
- Площадь кровли: 158 м2
- Отделка: Без отделки
Материалы и перечень работ
- Вариативный
- Вариативная
- Вариативная
- Вариативные
- Вариативная
- Вариативный
- Вариативный
- Вариативная
- Вариативная
- Вариативные
- Вариативная
- Вариативный
Что еще входит в стоимость:
Отправьте свои контакты и мы расчитаем вам смету
Скорее всего вам подойдут следующие проекты домов:
Проект двухэтажного дома двухэтажный 144 м² Арт. 2.2
Для большой семьи
Дом подходит для:
Дом подходит для:



