Проект двухэтажного дома двухэтажный 144 м² Арт. 2.2
Дом подходит для:
Площадь
144 м 2
Размер дома:
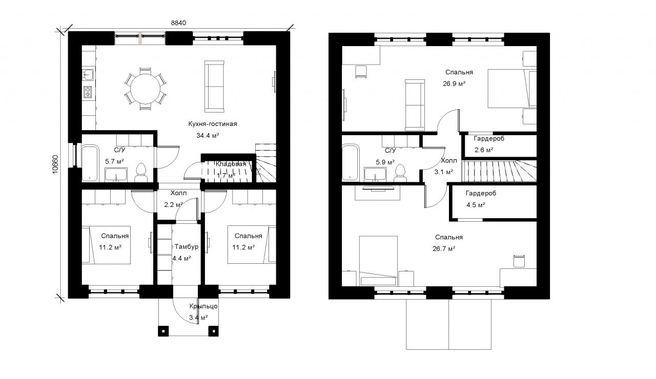
9х11
Этажей:
2
Спален:
4
Санузел:
2
Гараж:
Нет
Баня:
Нет
Терраса:
Нет
Панорамные окна:
Нет
Мастер-спальня:
Нет
Планировка
Характеристики
- Общая площадь: 144 м2
- Жилая площадь: 108 м2
- Количество этажей: 2
- Гараж: нет
- Площадь кровли: 148 м2
- Отделка: Без отделки
- Фундамент: Дома со свайным фундаментом
Материалы и перечень работ
- Железобетонные буронабивные сваи с анкерным расширением в основании и ростверком.
- Заземляющий контур. Ввод водопровода с греющим кабелем. Вывод технической и фекальной канализаций. Кран полива участка.
- Наружные стены дома из керамического блока 2.1 НФ, утепленные каменной ватой на 100 мм. вентиляционный зазор 30 мм. между утеплителем и облицовочной частью дома, снаружи дом отделан облицовочным кирпичом.
- Облицовка дома и внутренняя стена связываются между собой базальтовой сеткой.
- Штучная цементно-песчаная черепица BRAAS с необходимыми доборными элементами.
- Отделка карнизов и свесов кровли фиброцементной доской, либо софитами Docke.
- Подкровельная мембрана «Ютайвек».
- Утепленная металлическая дверь с терморазрывами по коробке и полотну, с металлическим окрашенным листом снаружи и ламинированной под дерево внутренней панелью МДФ.
- Оконные блоки из профиля MELKE (Россия) с двухкамерными стеклопакетами 32мм.
- Двухтрубная система отопления с электрокотлом и обвязкой газового котла. Жидкостные радиаторы. Опрессовка системы перед запуском. Теплые полы по всему первому этажу и санузлах второго этажа.
- Разводка металлопластиковых труб по дому. Кран ввода воды, фильтр глубокой очистки, манометр, распределительный коллектор, электробойлер. Подключение всех приборов.
- Канализационный стояк с ревизией и вентиляционным выходом на кровле. Скрытая разводка ПВХ труб системы канализации по дому.
- Скрытая разводка электропроводки в стальных трубах. Установка ВРУ, УЗО и автоматов на каждую группу потребителей. Монтаж освещения, выключателей и розеток.
- Облицовка натуральным кирпичом либо штукатуркой.
- Отделка стен гипсовой штукатуркой (машинный способ нанесения). Подоконники и откосы на окнах и дверях. Утепление и стяжка полов.
- Железобетонные буронабивные сваи с анкерным расширением в основании и ростверком.
- Заземляющий контур. Ввод водопровода с греющим кабелем. Вывод технической и фекальной канализаций. Кран полива участка.
- Наружные стены дома из керамического блока 2.1 НФ, утепленные каменной ватой на 100 мм. вентиляционный зазор 30 мм. между утеплителем и облицовочной частью дома, снаружи дом отделан облицовочным кирпичом.
- Облицовка дома и внутренняя стена связываются между собой базальтовой сеткой.
- Штучная цементно-песчаная черепица BRAAS с необходимыми доборными элементами.
- Отделка карнизов и свесов кровли фиброцементной доской, либо софитами Docke.
- Подкровельная мембрана «Ютайвек».
- Утепленная металлическая дверь с терморазрывами по коробке и полотну, с металлическим окрашенным листом снаружи и ламинированной под дерево внутренней панелью МДФ.
- Оконные блоки из профиля MELKE (Россия) с двухкамерными стеклопакетами 32мм.
- Двухтрубная система отопления с электрокотлом и обвязкой газового котла. Жидкостные радиаторы. Опрессовка системы перед запуском. Теплые полы по всему первому этажу и санузлах второго этажа.
- Разводка металлопластиковых труб по дому. Кран ввода воды, фильтр глубокой очистки, манометр, распределительный коллектор, электробойлер. Подключение всех приборов.
- Канализационный стояк с ревизией и вентиляционным выходом на кровле. Скрытая разводка ПВХ труб системы канализации по дому.
- Скрытая разводка электропроводки в стальных трубах. Установка ВРУ, УЗО и автоматов на каждую группу потребителей. Монтаж освещения, выключателей и розеток.
- Облицовка натуральным кирпичом либо штукатуркой.
- Отделка стен гипсовой штукатуркой (машинный способ нанесения). Подоконники и откосы на окнах и дверях. Утепление и стяжка полов.
Что еще входит в стоимость:
Отправьте свои контакты и мы расчитаем вам смету
Скорее всего вам подойдут следующие проекты домов:
Дом подходит для:
Проект двухэтажного дома S-158
Для большой семьи
Дом подходит для:
Дом подходит для:
Проект двухэтажного дома Н 31
Семья с двумя детьми
Дом подходит для:
Дом подходит для:


















