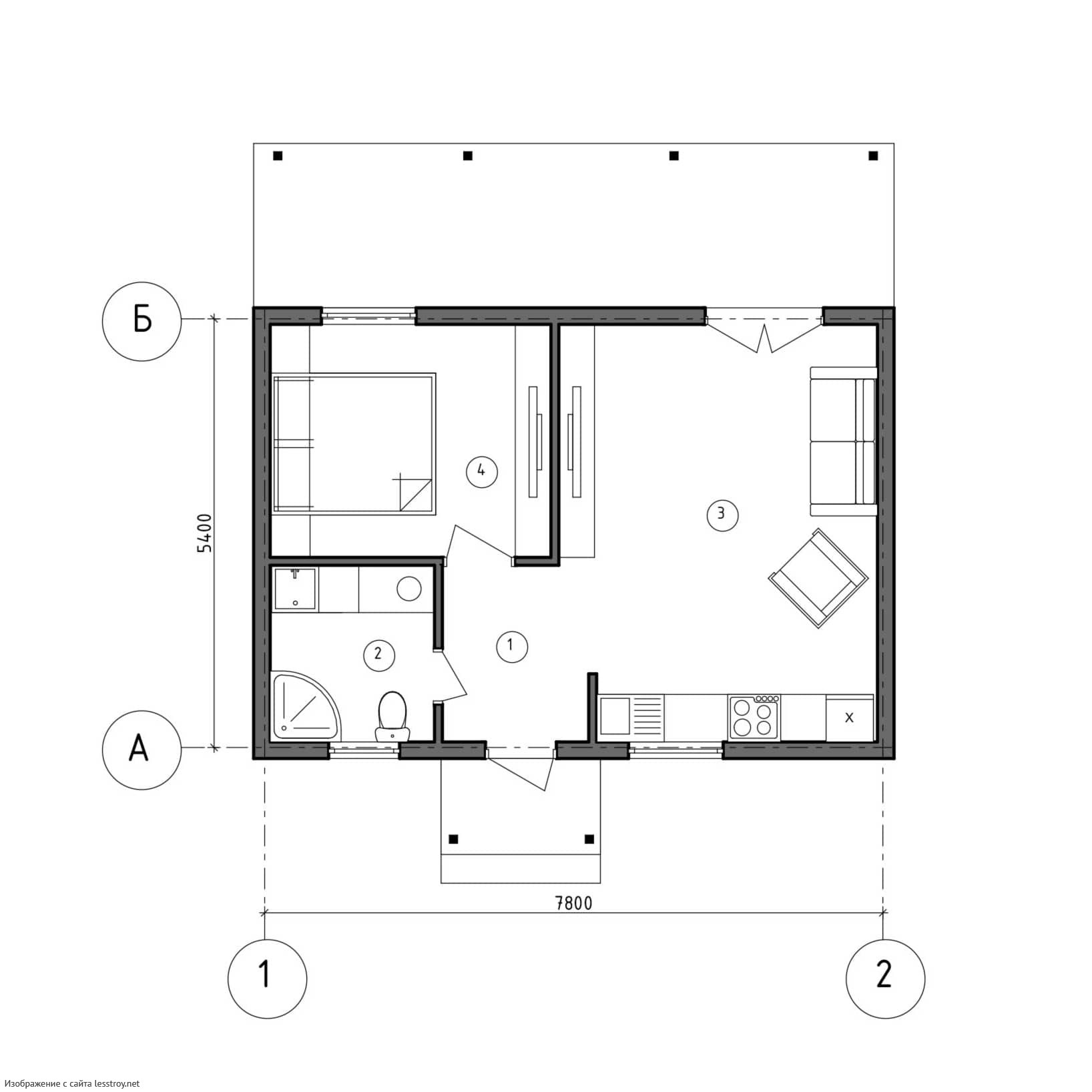
Проект одноэтажного дома Садовник
Площадь
42 м 2
Размер дома:
6x8
Этажей:
1
Спален:
1
Санузел:
0
Гараж:
Нет
Баня:
Нет
Терраса:
Нет
Панорамные окна:
Нет
Мастер-спальня:
Нет
О проекте
Архитектура вдохновлена природой, создавая плавные переходы между формами.В этом доме — 108 м² по-настоящему полезной площади. Дом спроектирован в духе дома в стиле русский. Проект включает 3 спальни — удобно для семьи. Двухэтажная современная планировка делает зонирование более логичным.Характеристики
- Общая площадь: 42 м2
- Количество этажей: 1
- Стиль, разновидность: Дома в ином стиле
- Форма: Прямоугольные дома
- Тип кровли: Дома с двускатной крышей
- Отделка: Без отделки
- Размер: 6x8














