Проект одноэтажного дома SIP 6
Площадь
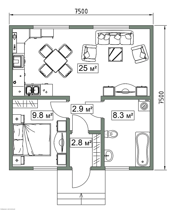
46 м 2
Размер дома:
Этажей:
1
Спален:
2
Санузел:
0
Гараж:
Нет
Баня:
Нет
Терраса:
Нет
Панорамные окна:
Нет
Мастер-спальня:
Нет
О проекте
Уютный кокон из натуральных материалов и мягкого света. 46 м² жилого пространства — разумное решение для повседневной жизни. Одноэтажная эргономичная планировка разделяет приватные и общественные зоны. Наличие 2 спальни удовлетворит запросы семьи с детьми. Стены из Каркас хорошо держат тепло и защищают от шума.Характеристики
- Общая площадь: 46 м2
- Количество этажей: 1
- Стиль, разновидность: Дома в ином стиле
- Форма: Г-образные дома
- Тип кровли: Дома с многощипцовой крышей
- Отделка: Без отделки














